
项目地点:深圳市龙岗区
校园规划及设计联合体:王维仁建筑设计研究室、许李严建筑师事务有限公司、嘉柏建筑师事务所
图书馆及学生中庭广场建筑设计单位:王维仁建筑设计研究室、 中国建筑东北设计院有限公司深圳分公司
绿地轴线的校园原型
香港中文大学深圳校园规划是一种校园原型概念的延伸,启发自美国退休总统杰弗逊(Thomas Jefferson)在维吉尼亚大学校园的自然理想。
牛津、剑桥等欧洲大学校园来自修道院严谨方院(Quadrangle)的传统,在北美新大陆逐渐发展了一种开放的方院形式, 如哈佛有机发展的大小方院,结合了绿地与宗教、仪礼、生活、教学和研究的功能空间。十九世纪,杰弗逊在老家规划的维吉尼亚大学,进一步结合启蒙运动后自然主义的理想,将美国大学的校园空间转化为一种以自然绿地作为象徵,以图书馆作为轴线端景的大尺度长型绿地方院,配合地形变化远眺草地的尽端,让延绵无尽的自然地景成为永恒知识的象征。
面对着中国即将消失的稻田水塘,我们多年来一直提出一种以大尺度自然地景为主轴的校园空间,希望以一种建筑对自然田园的救赎,保留部分原生态的农田地景与树林,成为师生读书散步和讨论的生活场景。相对于国内校园以教学、运动、生活功能为主的典型分区规划,我们提出一种整体绿地的校园空间原型,结合生活与学习成为一种以人为本、以自然为主轴的校园环境。



大片绿地的校园空间
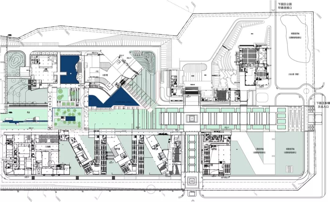
港中大深圳校园的规划方案把建筑与景观的整体配置组成“山麓建筑”“绿地树林”“院落建筑”三个平行的线性空间:
“山麓建筑”的礼堂、行政楼、图书馆、学生中心、书院,沿着山麓以序列的单体建筑方式排开配置,独立建筑一方面衬托山体,另一方面拉开间隙,保持山体和校园空间的视觉联系;

校园中央的“绿地树林”,经由60至80米宽的连续绿地、广场、水体和树林,引入山体谷地的景观与水文,形成校园中央的绿色轴线;

远离山体的“院落建筑”以线性的大构筑,将教学楼和实验室以院落的连续形式配置在城市街廓面,联系而又隔滤了城市的道路繁忙,营造了中央宁静的校园空间。
校园中央宽广的林荫绿地,一方面延续了杰弗逊校园绿地中轴的空间传统,另一方面将对称轴线转化为非对称的自然绿地,连接了校园西侧的山体生态,重构了可持续的树林水文与绿地景观肌理。由山谷带入校园空间的自然景观与水系,从北侧入口经过校园绿地顺着地形连到中央草地,再到南侧的花园水景与大台阶广场。七百米长的校园空间完全以步道联系所有建筑的主要入口,配合安排在建筑背面的外围车道,成为尊重自然与人本价值的无车校园空间。



复合的中庭广场
学生中庭广场如同一个下沉的合院建筑体,南侧利用缓坡联系逸夫书院与学生中心底层餐厅,北侧则以大阶梯座椅联接地面层绿地。二层的东西向连廊串联了序列的院落建筑与图书馆和学生中心,除了为学生提供遮阴避雨的廊道空间,也界定了校园空间的边界。


就整体校园空间来看,中庭广场成为校园核心最重要的复合式建筑空间,整合了校园南北向和东西向的地形高差。中庭合院广场的空间不但联系了图书馆、学生中心和教学楼等不同功能的建筑,更衔接了各个建筑的底层、地面层、连廊上层的不同入口,使人联想起香港典型的复合多层城市空间。包括了学生超市、书店、银行、咖啡厅等生活功能的中庭广场,本身是没有造型的虚空间,却也同时是最活跃的建筑功能实体。

透过北侧的台阶广场和联系南侧中央绿地缓缓下沉的步道,加上中庭上方对应的方形回廊,和二楼的连桥联系不同建筑,下沉的学生中庭广场成为一个三维的多功能综合建筑体。它不但直接联系东西两组平行建筑群,透过上下的草地树林水池绿化,这个核心空间同时保持了校园空间南北向大绿地的基本个性。


图书馆
港中大深圳校园的图书馆建筑,以多层挑高的书架天光大堂为空间中心,延展到线性体量底端,观山框景的图书阅览室。图书馆室外的空间序列“庭/廊/台”配合了室内空间序列的“厅/堂/室”,彰显了室内与室外的空间对话,与平行双重框景的空间张力。设计将两个交错的C字形长条体经由转折和架空迭加,分别配合了校园的入口朝向与绿地入轴线,保留了由中央绿地到山体的视线穿透性,也维系了校园自然坡地的完整性。



设计同时利用内外墙体的过渡与木条和冲孔遮阳板的调控,将间接光源引入室内的阅览空间。建筑立面利用石材与青砖以退缩的外廊和开展的实墙,架起厚实而轻微曲折的上层铝板体量,随着观者在校园的步换景移,呼应了传统的屋瓦举折与凤凰展翅的大学意象。



在设计发展的过程中,我们面临了三个主要的挑战与思考:
1. 功能:藏书殿堂还是学习工作坊?
过去的图书馆设计强调藏书容量与书架效率,读者查阅以及馆员分类上架的运作逻辑,并依此决定一般书架与密集书库的分配、理想的结构柱距和不同楼板承重的配置、书架模组和灯光空调的分布,以及藏书预留空间。然而随着这三十年资讯数字化的变革和纸质书籍的逐渐减少,图书馆从一个藏书、借书和看书的空间,变成众人工作和学习的地点。
如果图书馆已成为大家工作学习的大客厅,那么它和一般咖啡厅、公共大堂或公园草坡如何不同呢?图书馆应是群书环绕安静宜人的读书圣殿,还是容纳多元声光荧幕的电子媒体中心?在过去五年和多位图书馆长讨论这些核心问题的过程中,我们逐渐明确自身作为建筑师的立场:我们拒绝大面积均值空间的层层迭加,因为图书馆不只是藏书的空间机器,也不会只是数字媒体的展示间。我们相信图书馆仍应是人本的知识资讯的互动空间、藏书与阅览的殿堂、研讨与学习的工作坊。透过知识探讨的媒介,图书馆更应是人与人、人与自然光线和景观的互动场域。



2. 氛围:光线、书与景观
港中大图书馆的设计,由米开朗基罗、阿斯普朗德、路易斯·康和奥托的图书馆空间原型,一路发展出一个以水平长条体量转折的书架序列和垂直天光穿透书架交错形成的空间秩序。在多层挑高的书架中央大堂,由上而下的天光透过书本,成为图书馆空间的精神象征,同时向各个方向和楼层延展出不同功能的阅览室。



我们在六层的体量内部安排了两个平行而关键的空间穿透:第一个经由大阶梯将视觉带到背后的青山,另一个透过书架将变换的阳光带入空间核心。
第一个空间穿透是水平上仰的,设计利用上下两个体量的交错迭合空间,透过挑高的大厅入口和大台阶的视觉引导,将读者的视觉与流线从大门一路带到三层的平台面对后山的绿意。这个穿透强化了体量围合后院的形态关系,以及建筑空间对自然山体的通透性。
第二个空间穿透是垂直的,透过高耸的书架、楼梯、连桥与由上洒下的变换光线,如同哥特式教堂的天光形成神圣氛围的知识殿堂。设计在上下两个空间体量重合的部分,随着体量的曲折打开一个五层高的中庭天井,天井上方的轻微弯曲的采光天窗由校园轴线转到南北向,透过穿孔铝板的方位与角度变换,过滤夏季的遮阴,引入冬季的阳光,让早晚与季节光影的变化成为书架与地板的痕迹。天井侧墙的挑空书架背面是善本藏书室与阅览厅,读者透过楼梯节节上升的引导和连桥的交错,产生天窗、遮阴、书架、楼板、梯桥的多重空间层次,以及视觉与身体向上运动时和书架与书本的互动暗示。



3. 场地与意义
图书馆建筑作为港中大校园绿地轴线序列公共建筑的关键,担负了校园形式象征以及中庭广场连桥的转折功能。建筑面对山体的一侧形成了框景的阅览室,同时对另一侧的校园绿地空间45度方向转折并围合展开入口。建筑主要的入口层提高到二层,营造出入口点的仪式感,同时呼应了地面层研习坊外侧木隔扇立面的外廊,在中庭方院的转角提供了便捷的出入口。外廊加强了地面层与校园空间的互动,也解决了一二层入口转换的坡道连接。



在整体的建筑意象上,图书馆下半木色隔扇的轻质量体与镜面水体,架起上半身深色的铝板体量,经由墙身材质的虚实变换与轻微的转折曲面,借喻了平等院凤凰堂的曲面瓦顶形象与净土宗的倒影水池,暗示了港中大传统中“凤凰展翅”的寓意,成为校园学习生活的核心建筑。


完整项目信息
项目名称:香港中文大学深圳校园规划、学生中庭广场及图书馆
项目类型:规划/景观/建筑
项目地点:深圳市龙岗区
校园规划及设计联合体:
王维仁建筑设计研究室
许李严建筑师事务有限公司
嘉柏建筑师事务所
图书馆及学生中庭广场建筑设计单位:
王维仁建筑设计研究室
中国建筑东北设计院有限公司深圳分公司
主创建筑师: 王维仁
设计团队完整名单:王维仁、谢菁、程骁、冯立、钱健石、苏畅、王璐、王欢、王浩然、李抒青、田一
业主:香港中文大学(深圳)
建成状态:建成
图书馆设计时间:2013-2017
图书馆建设时间:2015.7-2017.8
图书馆建筑面积:22,080平方米
校园规划用地面积:1,000,000平方米
校园建筑总面积:303,954平方米
建设单位:深圳市住宅工程管理站
本文编排版权归有方所有。图片版权归摄影师或来源机构所有。若有涉及任何版权问题,请及时和我们联系,我们将尽快妥善处理。联系邮箱:info@archiposition.com
上一篇:UNStudio最新设计:连接中俄的全球首个跨境缆车,布拉戈维申斯克缆车站方案公布
下一篇:张雷:十个未建成