OMA


Torre是位于米兰Prada艺术中心高60米的塔楼,于2018年4月19日完成并向外界开放。该塔楼是OMA在米兰南部的杜松子酒庄设计的第三个新建筑,它们将1900平方米的工业园区变成了艺术展示与文化活动的场所。
Torre, the 60-metre high tower of Fondazione Prada’s arts compound in Milan, has been completed and opened to the press today. Torre is the third new structure OMA added to the former gin distillery on the southe edge of Milan, transforming the 19,000 m² industrial campus into a venue for art display and cultural events.




Chris van Duijn表示:“随着Torre的完成,Prada基金会终于可以将这个建筑群中唯一的垂直画廊展示在米兰的中心,强调了Prada和米兰这座城市之间紧密的联系。”
Chris van Duijn: "With the completion of ‘Torre’, the only vertical gallery on the compound, Fondazione Prada can finally reveal its presence to the center of Milan, emphasizing the strong relation between Prada and the city of Milan."
在此之前,该工业园区还增加了平台作为园区中心的展览馆。该展览馆一层是半透明画廊空间,二层是用泡沫铝板覆盖的画廊空间及一个电影院。配有大型双扇门的电影院作为多媒体礼堂,可以结合户外庭院产生多种空间形态。经过改造的结构与新建筑一起为米兰的视觉表演艺术创造了丰富多变的环境。
Earlier additions to the industrial complex were Podium, an exhibition pavilion at the center of the compound, consisting of a translucent gallery space on the ground floor and a second gallery space clad in aluminum foam on top, and Cinema, a multimedia auditorium with large bi-fold doors, which can be used in multiple spatial configurations in combination with the outdoor courtyard. Together, the renovated structures and the new buildings create a rich and spatially diverse setting for the visual and performing arts in Milan.

在一系列不同展示环境中,Torre作为最后一部分协同其他部分一起定义了Prada基金会。这座塔楼的矩形平面是在基金会西北角的楔形场地上建造的,由共同悬吊在米兰的公共空间上的交错矩形平面与楔形平面组成。
Torre is the final section of a collection of different exhibition conditions that together define Fondazione Prada. Its rectangular plan is constructed on a wedge-shaped site, on the North-West coer of the Fondazione; the tower consists of alteating blocks of wedge-shaped-plans and rectangular floors that are cantilevered over Milan’s public space.



在塔楼的背部,一个对角线结构从巨大的沉积物中彰显出来,将塔楼往后拉。
At the rear, a diagonal structure emerging from the vastness of the Deposito pulls the tower back.


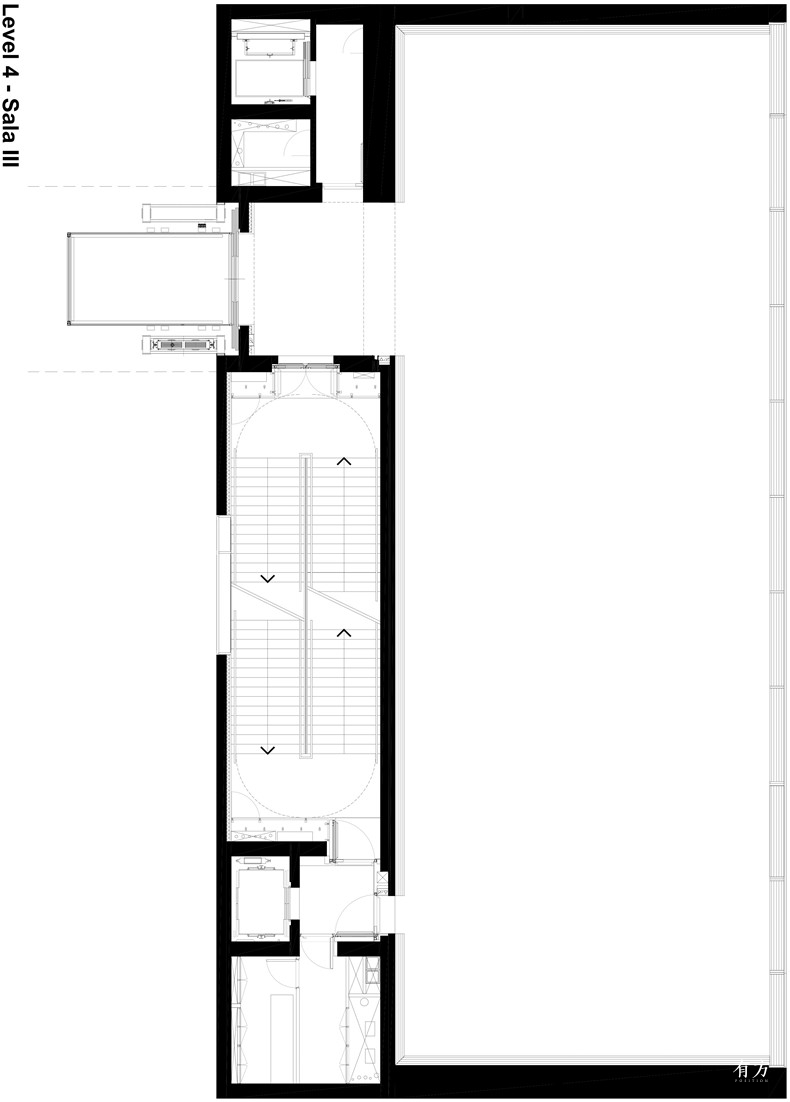
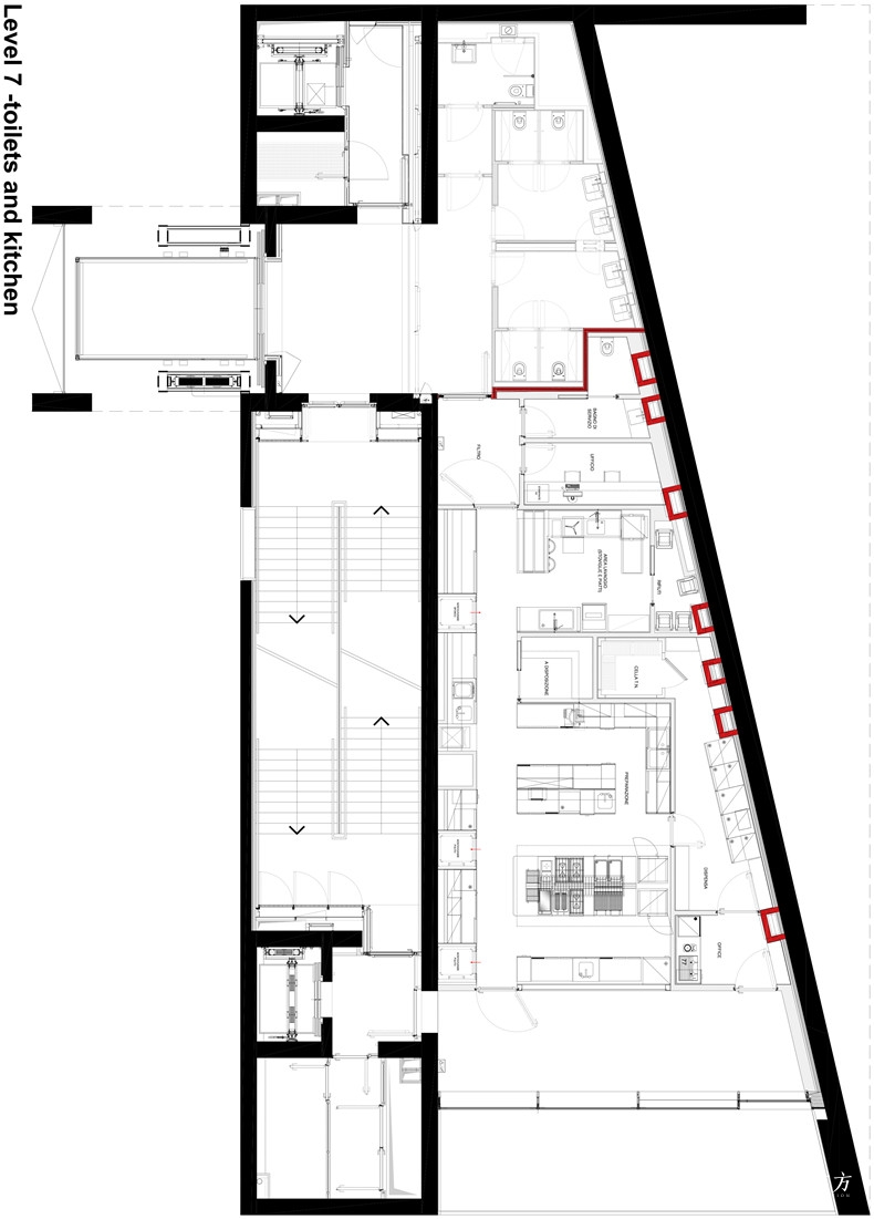
塔楼的设计致力于为艺术展览开发一种新的类型学。白色混凝土塔有九层,由于平面尺寸、高度与方向的变化以及在玻璃与混凝土表皮之间交替的立面,每一层都有不同的空间参数。天花板高度从底部到塔顶逐级增加。九层中的六层为展览空间,其余三层为餐厅及其他游客设施。160平方米的全景露台(完成结构)提供了一个壮观的城市视野。

The design of Torre is devoted to the development of a new typology for the exhibition of art. The white concrete tower has nine levels, each with different spatial parameters, due to variations in plan dimensions, height and orientation, and with a facade that alteates between glass and concrete surfaces. The height of the ceiling cumulatively increases with each floor from the bottom to the top of the tower. Six of the nine levels are exhibition spaces, while the remaining three floors host a restaurant and other visitors’ facilities. A 160m² panoramic terrace completes the structure offering a spectacular view of the city.










为了扩展基金会建筑的类型学,该塔楼采用了一系列系统的变化。如每一层都比上一层高;矩形平面与楔形平面交替变化;房间的朝向由面向北方全景的城市格局与面向东方、西方稍窄的视野相交分布。
To extend the typologies offered by the Fondazione, a series of systematic variations is applied: each next floor is taller than the previous one, rectangular plans alteate with wedge shapes, the orientation of the rooms alteates between panoramic city views to the North, or narrower views in opposite directions, East and West.

这些变化在一个简单的体量中创造除了一种激进/彻底的多样性,因此空间与特定事件或艺术作品之间的互动呈现了无数的展示环境。塔楼的底部设置了次入口,可以直接进入塔楼,到达其餐厅、屋顶花园、实验表演空间及基金会的其他部分。
Together these variations produce a radical diversity within a simple volume – so that the interaction between the spaces and specific events or works of art offer an endless variety of conditions… At the base of the tower, a second entrance offers direct access to the tower, its restaurant and roof terrace, the experimental performance space of the Deposito, and to the other parts of the Fondazione.
楼梯是统一所有不规则空间设计行为的元素。它的复杂性使其超越了典型的实用主义功能,成为具有高度存在感的元素。
The staircase is the one element unifying all irregularities – its complexity lifts it beyond the typical pragmatic element, the staircase has become a highly charged architectural element.





地址:意大利,米兰
设计团队:OMA建筑事务所
负责人:Rem Koolhaas, Chris van Duijn
项目主管:Federico Pompignoli
版权声明:本文获OMA授权发布,禁止以有方编辑版本转载。
上一篇:甘肃省高级人民法院 / 北京市建筑设计研究院有限公司
下一篇:王宝珍:与造园相关的两个闲话 | 有方论园09实录