汤物臣•肯文创意集团

人们说,生活是一场旅程。那家一定是你在茫茫人生之海中的那座孤岛,你会把旅途中收获的纪念品带回去偷偷珍藏,也会把经历过的欢笑与眼泪带回去小心安放,甚至你会带上那个愿意和你一同看海的人回去好好守护。
这次,设计师谢英凯受到委托,带领团队为广州一座百年老宅进行改造,试图探讨家庭生活最温暖的体验。同时希望打开这家人最值得回味的记忆,以一种更鲜活的方式重新讲述这个家的故事。



本次改造的委托家庭常住人口共有4位,分别是委托人冯老太太、她的第四个儿子和儿媳,以及小孙子。逢年过节还会有三五个兄弟姐妹回来短暂居住。
房子建于1919年,冯老太太九岁从马来西亚回到广州读书,便一直住在这里。老屋充满了她和爱人,还有五个孩子间的成长回忆。

老房共有三层,位于广州中心老城区,是典型的两两紧密相邻旧式临街洋房。这种临街洋房房型结构普遍偏狭长,加上老房本身不合理的窗户设置,造成自然风和光线都难以进入房屋,存在着严重的阴暗潮湿问题。而由此导致的白蚁泛滥,还有房屋自身因年久失修出现的结构问题,都困扰着委托人一家的日常起居。

除了房子的物理结构问题,这个家常住成员的变化,也使得以前的房屋格局不再满足他们现有的生活需求。
几十年前房子里住着冯老太太、她的爱人和五个孩子,为了满足七个人的起居生活,房屋被切割成了非常多个独立的空间。而今住在里面的只有四口人,这些空置而隔绝的独立空间却成为了这个家的“隔阂”。

因为散乱的功能分区,导致这家人平日的时间都被分散在了不同区域。比如,老太太爱在二楼小偏厅喝咖啡,四儿子则呆在顶楼工作间,儿媳却在卧室上网,这样一天下来,一家人见面的时间只有午饭和晚餐的时候。
是否应该打破这些“隔阂”?

从2015年开始,这已经是设计师谢英凯第三次为普通民居进行改造。在三年的改造中,有一点是设计师一直坚持的,他希望通过设计,让这个被称作“家”的房子能有更多可能相遇、可能相聚的空间,思考如何通过空间改变家人的相处模式,甚至是家庭关系。
「 除了基本功能,或许要更考虑一个家的亲密性。」
—— 谢英凯Thomas Tse
而针对本项目的结构特点和家庭情况,设计师提出了「 无界之居 」的设想。
原本的建筑分为正间和偏间两大板块,而它们之间却全都被实墙相隔开。所以设计师决定首先要打通屋内的这两大板块,通过拆除隔绝正间和偏间的承重墙,重新搭建钢结构改变整屋空间布局。

第二步是设计出集中家人主要移动线路的核心筒(楼梯+电梯),把原本分散的房子结构进行归一重置,利用核心筒连接各个功能空间,实现每个房间的相互连通。

打破种种无用的空间隔断,归整了整个空间布局后,人们可以在房子内更自由无阻地游走、碰面。同时设计师通过前后院、天窗、开放式空间的利用引入更多阳光,解决通风采光问题。
无论是人还是阳光都能在空间中互动起来。




原本的一层是两个房间间隔开的封闭布局,设计师选择打破这种矩阵界线,重新融合创造了一个宽敞通透的新空间。再通过不同家具的陈设,为这个空间有序地定义了丰富的区域功能。



厨房采用中西厨混合设计,通过移动悬挂挡板,可以任意变换成封闭式的中式厨房,或开放式西厨。

厨房的操作台也延伸至户外花园,天气晴朗时,家人可以在这里喝杯咖啡看看云,甚至不用走动就可以看到前院植物蔓延的样子,视线所及之处有时便是所到之处。


冯老太太的爱人已经过世,但他一直是这个家庭的灵魂人物。他曾在国家陷入战乱时选择从海外归国抗战,明明是工学院的高材生,在岭南画派中却也找到自己的一席之地。他的许多精神在几十年来,一直影响着这个家的每个人。
“这个房子更重要是用来纪念我们的爸爸”,这也是委托人儿子告诉设计师的诉求。
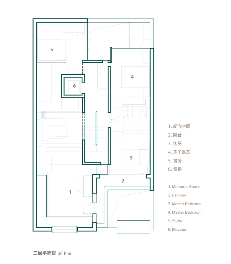
于是设计师在房子的二三层之间,打造了一个专属于这个家的跨层休闲文化空间。用以纪念这位父亲和他带给这个家庭珍贵的记忆和传承。

一家人平日可以聚在这里,用投影看看过去的家庭影像,或是一同鉴赏老父亲的画作,再互相讲讲以前的趣事。



各个家人的卧室都被安排在二三层。卧室的设计,在保证各自私密性的前提下,设计师利用中空、相对的窗户、巧妙的房门位置安排等手法,创造了许多的视线交叉点,试图让房子的界限不再那么严密明晰。家人就算留在房间,也能随时看见彼此的生活状态。



考虑到老太太的孙子已到适婚年龄,未来组建家庭的空间需求,设计师把他的活动空间独立安排在了三层。孙子的房间紧连着的是独立卫生间和一间备用客房。两间房的门可以双向开合,变成一间使用。



可以看到,这个家里的每个空间都会与一个中空或天窗相连,除了能引入更多阳光,人们只要把窗帘打开,就可以看到整所房子里不同角落的场景,一家人拥有了更多可能互动的机会。


现在承载着楼梯和电梯的核心筒是空间之间的唯一连接,设计师在各个走道里设计了许多“空隙”,这样的设计创造了一个生动的场景,让居住者在室内游走时增添了许多惊喜或是探寻空间的乐趣。




顶楼是四儿子的工作室和天台花园。设计师保留了家中原有的花色地砖和民国时期的旧式书柜及转椅,重新使用在工作室里,为家人营造了有趣的新旧记忆碰撞。



天台花园里增设了许多植物摆放的区域,斑驳的老墙和绿意盎然的盆栽相映成趣,在这片匆匆闹市城区中,这家人拥有了专属于自己的清新小天地。


冯老太太一家不仅住的房子是上个世纪的,里面用的家具也是非常珍贵的“爷爷辈海归”。它们在民国时期购置,部分从海外进口,是冯老太太最珍视最常念叨的事物,它们身上记录了太多关于这个家庭的回忆。
设计师精选其中27件,委托有多年修复经验的家具师傅进行纯手工翻新。希望这些椅子桌子们,能从“新”开始,陪伴这个家走过下一个百年。








- 项目基本信息 -
项目名称:无界之居
项目地址:广州市越秀区
项目类型:住宅空间
项目面积:375 ㎡
设计时间:2017
完成时间:2017
设计单位:汤物臣•肯文创意集团
设计总监:谢英凯
参与设计师:于娇 / 余江垿 / 叶剑昌 / 丁瑶涵 / 王靖 / 宋玥宸
空间摄影:黄早慧
影像拍摄:吴团江
版权声明:本文已获汤物臣•肯文创意集团授权有方空间发表,欢迎转发,禁止转载。
上一篇:再简单的场地都蕴含力量:合木建筑的2017年
下一篇:9家上海年轻建筑事务所的2017年