编者按:上周,2017年欧洲建筑最高奖——密斯·凡·德·罗奖(Mies van der Rohe Award)公布了进入终选的5强名单,它们分别是位于丹麦的Kannikegården、位于英国的Ely Court、位于荷兰的deFlat Kleiburg、位于法国的The Rivesaltes Memorial以及位于波兰的Katyn Museum。
以下为5个项目的详细信息。






项目位于丹麦保存得最好的中世纪小城Ribe,就坐落在城中心的教堂对面,为教堂理事会所用。这个简单的砖体量建筑一层面对城市开放,将一个具有一千年历史的砖废墟包容在内,为公众讲述了一个关于城市文化与历史的故事。






Ely Court是位于英国伦敦布伦特区的一处住宅,内含44个居住单位。它是该地区城市更新计划一期中的其中一个项目。





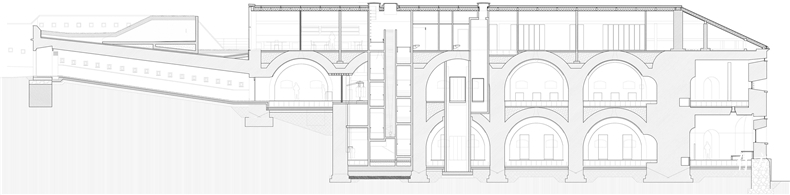
deFlat Kleiburg是一个对荷兰最大的公寓楼进行创新改造的项目,折线型的大楼长400米,共10+1层高,内含500个公寓单位。


下图是建筑剖面图。

里韦萨尔特纪念馆为纪念若弗尔营地而建,体量嵌入地下,建筑显得沉默而谦逊。在长度上,它向东端延伸至以前开营地会议的地方;在高度上,它从地平面上升起,与营地余留建筑平齐。






Katyn Museum名为卡廷惨案博物馆,为纪念在二战中被苏联秘密警察杀害的两万位波兰军官而建。建筑位于华沙城堡的南端,与另外三栋历史建筑毗邻,基地中央是卡廷森林。
参考资料
http://miesarch.com/archive/4?editions=16&classification=2
版权声明:本文版权归行走中的建筑学所有。欢迎转发,禁止转载。
上一篇:旅行现场 | 印度:踏上柯布与康实践理想的土地(二)
下一篇:去希腊旅行,如何看懂古典柱式?