
“自2015年成立以来,一十一建筑完成了多个景观和室内空间设计,并在2017年末迎来了第一个建筑设计项目。我们由衷地觉得一十一建筑正慢慢成长起来。过去这三年来,我们一直被室内空间设计吸引并乐在其中。因为一十一建筑关注的是‘创造能让人感觉到真实存在的空间’,而在设计空间步行体验和发掘材料构造特性的过程中,我们收获了无数的新想法和创意。新的2018年,一十一建筑将在建筑设计实践的同时,继续室内空间设计领域的探索。”
——一十一建筑
一十一建筑是由Fujimori Ryo和谢菁两位建筑师在深圳成立的建筑设计事务所,成立于2015年。包括深圳在内的许多中国城市,从过去的数十年至今,经历着大规模的高速城市发展。带着单一目标的生产机制,在短时间成功的实现了城市化,但却使得城市/建筑空间无法再提供多元的生活方式,只剩下高效工作和居住一种选择。我们希望探索设计方法的多种可能性,并努力创造为“使用的人”而建造的有意义的城市/建筑空间。




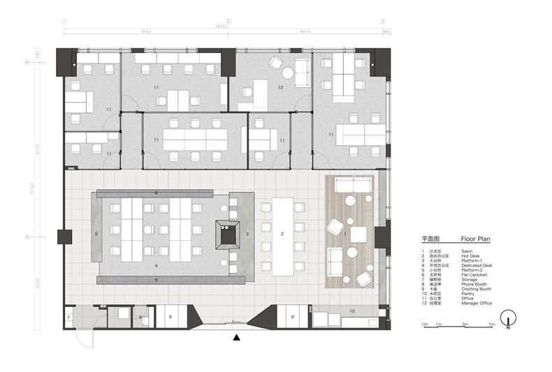
这是一个小尺度的联合办公空间设计,包括7间办公室,12个固定工位,8个自由办公座位,水吧,休闲沙龙等。这个项目是在一个典型写字楼里的300平方米的长方形场地,但一根矗立在正中央的结构柱使得它具有了非典型的特色。
为了呼应“联合办公”的概念,这个项目最主要的部分被设计成一个各个功能分区之间无明显分隔的开放空间。空间被按照以下四个空间元素进行安排:平台,长台,柱子,以及框架。设计意图是将前三个元素处理成地面的延伸,它们像是坚实地锚固在场地上,并为人们坐或靠等各种活动提供了空间。框架作为第四个空间元素,和前三个空间元素非常不同。它由镶嵌在网格状金属框架里的玻璃屏幕构成,从场地的一端贯穿另一端。从某些角度看,它的网格化的表面形成了非常强烈的空间透视,从另一些角度看,它又因为玻璃的穿透性和金属窗框的纤细感宛如一片纤薄的屏风。这个框架随着人们观察角度的变化拥有多样的视觉效果,从而创造出场地和人的步行经验之间的动态关系。无论是通过身体还是通过视觉感知,“探知空间”都是这个项目的设计关键。



设计团队:Fujimori Ryo,谢菁,罗明钢,张晓骏
项目地点:深圳市南山区科技园泰邦科技大厦18楼
项目功能:联合办公
设计面积:300平方米
建成时间:2017年12月
摄影师:张超建筑摄影工作室



这个项目选址在深圳市北面龙华老工业区一个工业建筑的顶层和屋顶阁楼,这里被改造成一个联合办公空间,包含了15个办公室、50个开放式固定工位,和一系列共享的讨论室、水吧和沙龙区。
这个场地有着工业建筑常见的简单大平面和规则柱网,但也有其自身的特点,就是面宽长达120米,而进深仅有15米。这种狭长的线性空间使得这个项目变得独特,同时要求设计者仔细考虑如何为贯穿长边的流线带来愉快的空间体验,避免沉闷无聊。这个问题的解答是将主要的通道设计成城市中的景观街道,一系列丰富多变的空间像拼贴一样沿着街道展开,这种空间复杂性带来了愉快的游走体验。这个项目最鲜明的设计元素是中部蜿蜒曲折而整体连续的一片长墙,沿着长墙开着大大小小的拱形洞口。这道墙沿长向贯穿场地,呼应了场地狭长的特色,并创造了街道,广场,小型口袋空间等公共空间。



设计团队:Fujimori Ryo,谢菁,罗明钢,杨剑铀
项目地点:深圳市坂田万科星火天枢仓4-5层
项目功能:联合办公
设计面积:2100平方米
建成时间:2017年3月
摄影师:张超建筑摄影工作室
一十一建筑
http://www.11architecture.cn/
版权声明:本文由一十一建筑授权有方发表,禁止以有方编辑后版本转载。
上一篇:走向新校园——“福田新校园行动计划”“8+1”建筑联展公告
下一篇:因地制宜:墨照建筑事务所的2017年