20世纪初期,打破并模糊内外边界的概念,在美国加州的住宅设计中被率先提出并得到发展——窗户逐渐被玻璃墙取代,居住者得以享受随意而自由的流动空间。现代主义大师们更是纷纷打破传统空间格局的限制来设计无界、开放的空间。密斯的巴塞罗那德国馆,更是“自由平面”和“流动空间”的代表作。如今,新一代建筑师延续并发展了早期现代主义大师的理念。从SANAA在康涅狄格的格雷斯农庄河畔屋(Grace Farms)中,得以看到流动空间灵动的身影。在笔者看来,这个设计继承了密斯的“自由平面”和“流动空间”思想,并以新的方式进行了演绎。




巴塞罗那德国馆,是为1929年巴塞罗那世博会而设计建造的临时建筑。除了附属用房,两片水池,一座雕塑,美轮美奂的大理石以及几件工艺精良的密斯椅外,这个展馆并没有限定的功能和展示内容。确切的说,这个馆所塑造的灵活流动空间本身就是展示内容。


作为一个社区活动中心, 格雷斯农庄河畔屋具有特定功能用途。顺着山坡往下分别为舞台,图书室,餐厅,茶室,地下篮球场。功能的布局由地形和环境决定。譬如舞台利用了地形的坡度,大家在欣赏舞蹈演出时,仿佛以山坡为座,以绿植为幕布,以树木(木质屋顶)为顶。

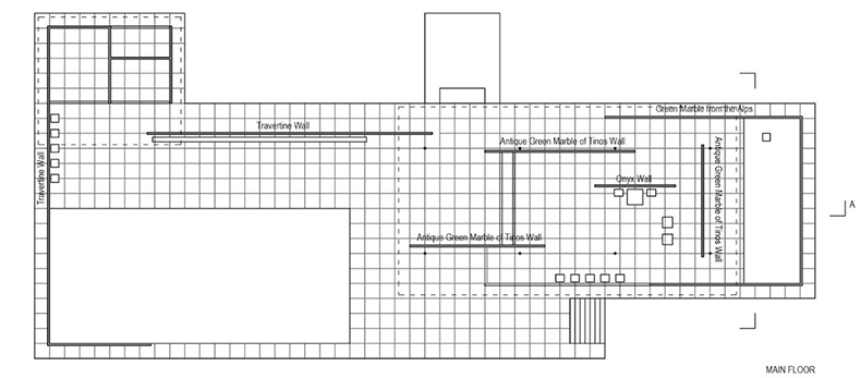
巴塞罗那德国馆的混合结构,由十字柱与隔墙共同支撑。隔断和镀铬十字形钢柱共同支撑荷载,得以减少了支撑墙的出现。以精通结构和材料出名的密斯,用 4个L型钢片焊接在1个H形钢片上,再嵌入两个T型小钢片创造了经典的十字形柱。柱子与地板砖的分隔,在他创造的秩序体系中有明确的坐标。深受蒙德里安影响的密斯,在此设计中也有体现。蒙德里安代表纯粹的抽象运动,推崇绘画中的理性思考,反对曲线的运动。德国馆的设计遵从这个原则,隔墙的设计依据人的抽象运动来设置。隔断墙灵活地穿梭于十字柱形成的矩形框架中,透明玻璃幕墙,大理石隔墙,错位,交织,疏离,创造出自由的空间效果。
同是流动空间,密斯的秩序体系理性而精确,格雷斯农庄河畔屋则更为随性。基本的框架结构是由重复的胶合木材柱子支撑。曲线造型造就了建筑与基地的高度融合。为了迎合高低起伏的地形,蜿蜒的建筑里的每个柱子都设计成倾斜的。每个柱子之间的距离有着细微变化。有的在玻璃盒子内,有的在屋顶下。大片通透的双层玻璃幕墙,使得内部的人可以清晰地看到周围的自然美景,在屋檐下和院子里参观的人则可以看到玻璃反射的自然环境。SANAA认为,材料的选择是为了强调建筑物与周围环境的关系,它的通透是为了使室内与室外毫无障碍地延续。建筑屋顶的顶层是经过抗氧化处理可防雨的铝板,可以反射天空,就好像一条彩虹盘桓在山坡上。

在设计德国馆时,密斯特地选了在通往西班牙馆路上的偏僻区域。参观者在进入展馆时拾级而上,离开展馆时直接走向西班牙馆。他将巴塞罗纳德国馆置于高台之上,不仅是出于对雅典卫城的崇拜,让参观者可以仰视和膜拜建筑,更是解决了地形的缓坡。同时,人工水池,高贵大理石,与格奥尔格·科尔贝的雕塑一起,精心营造了一种高雅意境。
SANAA则不同,她没有刻意回避坡地而是通过建筑巧妙地迎合了地形。五个功能玻璃盒子置于同一个屋檐下,轻轻放置在起伏的山坡上,轻柔地回应地形与环境。三种空间,玻璃盒子内部,屋檐下玻璃盒子外,天空下草地上,交织在一起,并没有明显的边界和束缚感。SANAA认为,建筑本身并不重要,人在建筑中的体验才是重要的。SANAA认为建筑是创造景观和氛围的媒介物,他们非常擅长用深思熟虑之后通过精炼方式解决复杂的建筑需求。与其说透明的双层玻璃模糊了内部和外部的边界,倒不如说建筑形态引导的流线动势与地形的融合,给人一种建筑即是环境,环境就是建筑的体验。


密斯的巴塞罗那德国馆是作为路途中的参观者 “理想的休息之所”而设计的。整个展馆(除去辅助用房和地下室)并没有封闭的空间,但是参观者无法直接穿过展馆。密斯在设计时考虑到人游走的动态流线和视线。人在巴塞罗纳德国馆中游走时,总面临选择接下来通向哪里这个问题。空间被人的行走激活,空间的节奏感被人的步伐所赋予。两片水池,一片作为迎宾,一片作为驻足冥想的空间,节奏显然是舒缓的。透明的玻璃,有色玻璃,不透明的大理石限定出的或宽或窄,节奏感快慢不一的空间。人的行走与驻足,都与大理石,水池与雕塑营造的景致有关。

格雷斯农庄河畔屋中,有五个封闭的玻璃功能馆,通透的功能馆并没有实体隔墙。这五个功能馆坐落在山坡上,通过一个连续蜿蜒的屋顶连接。地形的坡度和连续的屋顶,一定程度上引导了参观者的游走路径。不难发现,参观者在游走时,同样面临接下来通向哪里这个问题——是进入到玻璃盒子里呢还是沿着屋檐经过,或者是到围合出的园子里游走。空间的节奏感同样由人的行走与驻足决定。自然营造出的视线决定了参观者的游走路径。




密斯的巴塞罗纳世博馆和SANAA的格雷斯农庄河畔屋,这两个建筑的造型都给人一种体态的轻盈与漂浮感。这或许是因为屋顶的厚重感与立面的通透形成了强烈的对比。立面的通透给人一种错觉,仿佛支撑屋顶的只有精巧的十字柱或是纤细白柱。巴塞罗纳世博馆的屋顶由十字形钢柱支撑,更是强化了悬浮感这一特点。罗宾·埃文斯说过,柱子对“悬浮”的屋顶仿佛起到的不是支撑作用,而是将屋顶往下拉;而SANAA格蕾丝农庄河畔屋,木结构屋顶覆以铝板,反射了天空和周围环境,纤细的白色柱子支撑,漂浮感十足。
两者的建筑形态都十分的纯粹。SANAA的空间精致,灵动,流动。玻璃反射了周围的环境,与世界互动。SANAA的格蕾丝农庄河畔屋设计支撑了一个观点,那就是特性,自由和氛围可以通过最简单的方式进行回应。
如果说密斯的巴塞罗纳馆是理性和秩序的经典,那么SANAA的格蕾丝农庄河畔屋则是灵气和氛围的凝聚。
如果说密斯的巴塞罗纳馆是优雅的,那么SANNA的格蕾丝农庄河畔屋则是欢快喜悦的。
如果说密斯的巴塞罗纳德国馆是在向雅典卫城的台阶和技术致敬,那么SANNA的格蕾丝农庄河畔屋则是在歌颂自然与生活。
如果说密斯的巴塞罗那德国馆创造了理性的秩序,那么SANAA的格蕾丝农庄河畔屋则是遵从了自然的秩序。
二十世纪的流动空间带有工业化的精确,而二十一世纪的流动空间,更关注与自然融合与互动。
参考文献:
A Japanese Constellation: Toyo Ito, SANAA, and Beyond
El Croquis 179-180: Sanaa 2011-2015
Mies Van Der Rohe: Architecture and Structure
http://1.bp.blogspot.com/
http://www.arcspace.com/features/sanaa/river-building-grace-farms/
校对 李菁琳
版权声明:本文版权归有方空间所有,禁止转载。
上一篇:博塔手中的缩微宇宙
下一篇:12座1:1建造的理想家在东京会合