扎哈·哈迪德建筑事务所

在纽约高线公园片区,街道和公园之间的交互极具都市动感。这个层次丰厚的公共片区经过了历次迭代发展,扎哈·哈迪德事务所于此新落成的520 West 28th公寓回应了场地肌理及语境,将新的建造理念带入,成为高线片区基地历史上最新的一层。
There is a powerful urban dynamic between the streets of New York and the High Line, a layered civic realm that has developed over generations and in many iterations. 520 West 28th conveys this contextual relationship, applying new ideas and concepts to create the latest evolution of the site’s rich history.


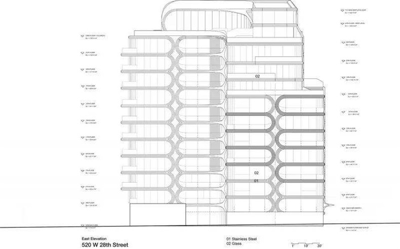
设计以分层区分出各个生活空间,并以此回应28号大街和高线公园多层次的城市空间特质。层次感通过大楼表皮的连锁人字形钢结构表达而出,体现着切尔西地区的工业历史及精神,工艺的细致质感延续了纽约市对公共区域环境品质的重视。
The split levels of the design define varied living spaces and echo the multiple layers of civic space on 28th Street and the High Line. These split levels are expressed within the interlocking chevrons of 520 West 28th’s hand-crafted steel façade which carries the spirit of Chelsea’s industrial past; its detailed workmanship continues the venerable tradition within New York’s historic architecture of enhancing the public realm.




立面的设计和建造植根于团队对材料特质以及制造工艺的深入了解,传达出团队对于细节的重视:表皮由人工粉刷着色,以此与高线公园和邻近社区形成呼应。
Designed and constructed with a practiced understanding of material qualities and manufacturing techniques, the façade conveys the attention to detail evident throughout 520 West 28th—brushed and tinted by hand to resonate with the adjacent structures of the High Line and its neighbourhood.





520 West 28th公寓高11层,共有39套住宅,各配以11英尺高的天花板和定制内饰,包括Zaha Hadid Design设计的Boffi厨房,以及自动泊车、储存等内置技术。公寓有多个核心筒,得以为住户尽可能多地提供私人电梯厅。公寓有游池、雕塑花园、配有IMAX影院的娱乐套间等内部设施。
The 11-storey 520 West 28th houses 39 residences with 11-foot coffered ceilings, tailored interiors that incorporate Boffi kitchens by Zaha Hadid Design, and integrated technologies including automated valet parking and storage. With multiple cores to give most residences private elevator lobbies, the amenities of 520 West 28th include the wellness level with spa and 25-yard sky-lit lap pool, sculpture garden, and entertainment suite with IMAX theatre.









高线公园片区已建成的350余座艺术展廊,见证了这片区域从废弃货运铁路向高品质公共空间的转变。520 West 28th在保有自身建筑个性的同时,以其建成延续着与此片区统一的公共气质。
Within an established community of over 350 art galleries that has seen the High Line’s transformation from abandoned freight rail line to public park, 520 West 28th embodies a commitment to uphold the distinctive character of its neighbourhood; creating a building with its own architectural presence, yet very much of its surroundings.















Project:520 West 28th
Location:New York City, USA
Date:2013—2018
Client:Related Companies
Status:Completed
Design: Zaha Hadid, Patrik Schumacher
Project Director: Johannes Schafelner
Project Architects:Johannes Schafelner, Alberto Barba
Package Leads: Aurora Santana (Units), Stella Dourtme (Amenities),Michael Sims (Façade), Natacha Viveiros (I-max)
Project Team:Sharan Sundar, John-Alan Gallerie, Seungho Yeo, Henning Hansen, Claudia Doer, Jakub Klaska, Afsoon Eshaghi, Mattia Gambardella, Moa Carlson, Sara Sheikh Akbari, Niran Buyukkoz, Marius Ceica, Igor Pantic, Jamie Mann, Matthew Carapiet, Sergey Krupin, Nicola Berkowski, Peter Logan, Sebastian, Lundberg, Miguel Diaz-Morales
NYC Construction Team:
Site Architects: Ed Gaskin,Filipe Pereira, Stella Dourtme
Director: Tiago Correia
Competition Team:
Project Director: Cristiano Ceccato
Project Architect: Johannes Schafelner
Project Designer: Jakub Klaska
Team: Elisabeth Bishop, Sharan Sundar, Saman Saffarian, Natacha Viveiros, Niran Buyukkoz, Yung Zhang, Spyridon Kaprinis, Kevin Sheppard, Manpreet Singh
Size: Residences between 1,700 – 5,500 square feet up to 11-foot ceilings on 11 storeys
版权声明:本文获扎哈·哈迪德建筑事务所授权发布,禁止以有方编辑版本转载。
上一篇:歌华营地体验中心 / 夏至建筑视频
下一篇:海边图书馆 / 夏至建筑视频