CCA悉筑(上海)建筑规划设计有限公司
编者按:幼儿园这一公共空间,在每个人的幼年生活里扮演了不可或缺的角色。带着对孩童世界的想象与思考,每个建筑师给出的幼儿园设计这一命题的答案有所不同。上周,有方推送了建筑师王昀的新作|吴家场幼儿园:数不尽的几何风景。这一次,我们走近CCA悉筑设计的赫威斯国际幼儿园,这座由旧厂房改造的新生场所。

幼儿园改造前的旧建筑,是业主创业之初的厂房。当时业主将它出租给了多个加工作坊,经过多年的使用,建筑已老旧。业主对其有很深的情怀,希望将其改造为一座国际幼儿园,产生社会效益,使旧建筑重获新生。


对旧建筑的整合、组织,以及新建筑与社区的关系都是建筑师首先要考虑的问题。

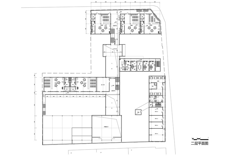
设计保留了1、2、4、6、8号楼并加固,拆除了3、5、7号楼,使场地更加通透开放,并提供了一些缓冲、疏导的空间,以及尺度更加自由的活动空间。设计通过一条联系轴将独立的功能区块串联,让空间使用更加便捷、舒适,同时营造出更多的空间层次。

教学空间分置于北侧、西侧两座原有的厂房中,保留的南侧钢结构厂房构筑作为活动空间使用,办公及后勤利用沿街的东侧原办公小楼改造而成。在建筑群中间新建一条多定义联系轴,串联起各部分,并激发整个幼儿园的活力。


设计试图创造一个干净·自然·自由的“快乐工厂”。幼儿园,一定是五颜六色的吗?孩子们与自然的关系,恐怕要比大人们更加直接、敏感;孩子们的内心世界,也比大人们更纯净、简单。一个孩子们喜欢的空间,干净、自然应该是必要条件。而色彩的丰富性,应该是一种视觉敏感的调节物,而非主导。
所以,整个建筑的外表皮,以白色弹性涂料+灰色波纹板为主体,以木为调节,而室内空间以白色为基色,配以大量的木,以形成干净自然的基调。




多定义公共轴不仅仅是联系空间,也是孩子们的游乐天地,设计师在此设置了许多游乐小品。




























项目周期:2015年12月—2016年09月
项目地点:宁波市海曙区前丰街
项目规模:3,471㎡
设计内容:建筑及室内设计
设计单位:CCA悉筑(上海)建筑规划设计有限公司
设计团队:陆海、娄礼伟、陈洋、张弢
版权声明:本文由CCA悉筑(上海)建筑规划设计有限公司授权有方发布,禁止以有方编辑后版本转载。
上一篇:揭开苏州礼堂的“面纱” / 如恩设计研究室
下一篇:去日本旅行,可以住进哪些建筑师设计的作品里?