
“历史总是跟随并且在不断为了迈向未来而与现在争斗的现实中被创造,历史不是怀旧的记忆。”
——卡洛·斯卡帕
意大利建筑界殿堂级人物卡洛·斯卡帕认为,人与动物最大的区别在于:人有历史感。他的建筑,是以石头为主堆砌而成的诗,每一个凝结了时代记忆的细部,皆有如建筑之诗的语言重心,各自展现其独特的脉络。
以下为三个斯卡帕代表作品的项目解读。




奥利维蒂陈列室坐落在圣马可广场西北侧角落,一栋15世纪有两层拱廊的老行政宫底层。于1958年开幕,由当时奥利维蒂品牌的掌管人亚德利安诺·奥利维蒂(Adriano Olivetti)委托意大利著名建筑师卡洛·斯卡帕设计。
陈列室是长21米,宽5米,高4.4米的一层空间,南侧朝向圣马可广场的拱廊是入口,后侧临运河,自然照度极低。斯卡帕通过面向广场的大面积落地玻璃窗,夹层面向广场的杏仁形窗户,以及临河一面透过柚木格栅的水光反射,尽可能多地获得自然光。同时在墙面上排布长方形乳白色磨砂玻璃,玻璃后方布置荧光灯形成墙面光柱,改善了室内光线效果。


在店中央,新增的直跑楼梯是空间的视觉中心,楼梯踏步采用浅灰白色的奥瑞希纳大理石,每一级踏步看上去都悬浮着,且长短不一地向水平两侧延伸,挣脱了通常楼梯那种直线的框架限定,而与楼梯栏板、楼梯侧边的展台形成一体。


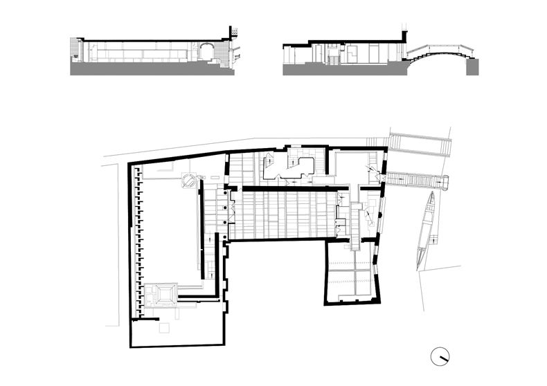
奎里尼·斯坦帕利亚基金会博物馆坐落于里亚托桥和圣马可广场之间,建筑的主体部分建造于1513-1523年,富丽堂皇的房屋被石膏和壁画所覆盖,氛围典雅。卡洛·斯卡帕在1959年至1963年间对这座博物馆进行了修复更新。
由于威尼斯的特殊地势,基金会在翻修前时常水患成灾。斯卡帕没有把水拒之门外,反而让它在建筑里流动得更加自由,更加戏剧化,以流动的水体赋予建筑以动感与变化。斯卡帕构想建筑物是一个复杂的容器,由一道路牙石将平面分为标高较低的水沟和高一些的地面,水沟容纳和引导洪水,地面是正常使用的空间。水从水道入口的铁栅门流入,沿着墙进入展室,走道成为了桥,不同潮位的水在分级地面上涨落,水体被建筑塑形,建筑亦由水体塑形。




斯卡帕分解建筑的时间不再是条分缕析的解剖性的时间,而是个人感受威尼斯水域环境的印象主义时间,一种微晃的摆脱了现实框架的时间,把水城特有的现象从原先的着落中抽离出来,再聚合在一起给予人们感知威尼斯的奇异角度。当代建筑历史学家纳普利亚尼用“隐喻”来评价斯卡帕的这一设计,正如卡尔维诺所言“我每次描述一个城市,其实都是在讲威尼斯的事。”



古堡始建于1354年,由当时城主斯卡里杰利(Scaligeri)家族修建,1796年被拿破仑军队占领,并加建了兵营建筑,迄今经历过两次修复。第一次是在1926年,由建筑师弗拉迪(Forlati)设计,双层兵营的一侧被改造成一个历史宫殿——立面改为对称布局,所有门窗都换成了哥特风格,军营的操场也被改造为意大利风格的花园。改造后的古堡,被抹去了其所有军营的历史痕迹。
古堡项目从1957年启动,直到1974年才全部建造完成。历时18年,可以将其明显地分为三期:
一期(1957-1958),借由1958年8月-10月举办一次展览为契机而展开。展览名为“从阿蒂基耶罗 到皮萨内洛 (Da Altichiero a Pisanello)”。其改造范围主要在城墙以西,包括莫比奥城门的挖掘,宫殿和马斯提奥塔楼的改造,以及东侧画廊一层部分房间的临时性改造。
二期(1959-1964)的改造范围主要在城墙以东包括画廊(兵营北翼)、大庭院及裙房,以及处理与西翼在不同标高上的交通连接,将其连为一体。
三期(1965-1967, 1969, 1973-1974),内容是原兵营东翼以及东北塔楼的改造,包括图书馆、办公室、展厅等功能空间。设计的时间集中于1965-67年。1967年,图书馆以及与东北塔楼的连接改造完成。1969年办公室建成,1974,年Avena展厅,即原音乐厅舞台,改造完成。
其中第二期最为关键,运用了手术刀般精准的动线组织和局部空间塑造,现代展陈与历史遗存之间形成双赢的关系。
斯卡帕将主入口移到庭园的东侧角,并利用两条横贯庭园东西的平行的紫杉树篱,在视线上和流线上,将庭园的对称性打破。将雕塑置于历时层次最丰富的地方,并利用天然的高差设置动线。室内通过利用旧的构架和洞口,营造出适合漫步其中的展陈体验,并通过新的材料,例如抛光抹灰、混凝土、陶土砖等,衬托展品的特质。



版权声明:本文版权归有方所有,禁止以有方编辑后版本转载。
上一篇:争论 | 建筑史学是什么? ——回应季元振先生的《评朱涛的新作》
下一篇:贵州中关村乡村人行桥:重塑人与村落的关系