入围理由
此项目尝试拉近传统与现代之间的极端,把新旧建造技术相结合,以保卫传统乡土建筑材料的运用和建筑技术智慧,从而设计出一个现代中国夯土合院式住宅的原型与样本。这不仅是一个传统合院住宅,而是一项现代农村乡土调研的产物,代表着一种新的建筑尝试,有意识地将乡土建筑逐步融入现代施工中。
项目基本资料
竣工日期:2012年3月
总面积:380平方米
总造价:53,400美元
单位造价:140 美元/平方米
协作单位
陕西省妇女联合会
陕西省红凤工程志愿者协会
临渭区妇女联合会
桥南镇政府
石家村村委会
香港大学
施工单位
渭南市经纬建安建筑公司
项目团队
关帼盈、黄稚沄、马洁怡、张健欢、钱坤、林雪筠、李宾
建筑师简介
林君翰,现任香港大学的助理教授。在纽约的柯柏联盟学院完成了艺术学与工程学的学习后,他于2002年被授予建筑学专业学位。他现阶段的研究重点是中国农村城市化进程以及乡村的可持续化发展。他设计并建造的项目包括学校、社区中心以及一所生态农宅原型,分布于陕西、江西、贵州及广东等省份的乡村地区。这些项目将当地传统的房屋施工手法与当代可持续化技术充分结合。他于2009及2010年两度获得《Architectural Review》“新兴建筑奖”以及2011年获得“亚洲最具影响力设计奖”。
作品照片















1.项目背景
过去三十年来的农民工进城打工潮不但使中国的城市地区有了急速的发展,同时这些农民工们的乡村家园也发生了翻天覆地的变化。無論在物质、经济建设及社会層面上,这种城镇化正加剧农村的转变。随之而来的是中国乡土建筑的转型—原本各具特色的地域性建筑沦为由混凝土、墙砖、瓷砖构成的广谱建筑。然而在此情况下,建筑师们竟是全然缺席了。因此,作为专业工作者,最迫切的问题是:建筑师在这种被认为毫无必要的情况下究竟可以做些什么?
最初这个项目是香港大学建筑系举办的一个实践学习工作坊。工作坊的学生们走访了不同的农村家庭并记录了他们的生活状况,收集编辑成一套当代中国农村家庭写照。这不仅是对住宅形式的描述,更是变化中村民生活情况的真实写照。我们的项目尝试透过学习并改良当地乡土建筑形态,以提出一种当代的乡土房屋原型。
2.设计理念
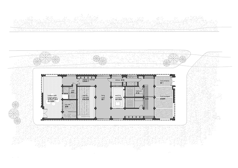
内部庭院是中国傳統房屋的一個重要元素,其正好诠释了农村人们的生活方式。我们设计的房屋建筑原型嘗試革新内部庭院的空間,令其與生活更息息相關。四个功能不同、各有特色的庭院空间,分別被插进整个住宅的主要功能空间,即厨房、厕所、客厅以及卧室之中,仿佛整个房子是绕着这四个庭院而建的。
建造这个住宅原型的一个重要目的是抵御村民们对外来商品和服务的日益依赖。多用途屋顶不但提供了晾晒作物的空间和席地而坐的大台阶,而且雨季时还可用来收集并储存雨水,以便旱季时使用。这座房子成为了一个自给自足的典范。靠近庭院的猪圈和地下沼气系统为烧火做饭提供了能量,同时从厨房冒出来的炊烟直接进入卧室的热炕,最后通过烟囱排出。
房屋结构是混凝土梁柱结构与胡基砖墙围护体系相结合,融合了新旧的建造技术。胡基砖墙是大陆性气候地区适用的传统保温材料。与之不同的是,这种新颖的混合型结构满足了抗震的要求。房屋的整个外墙被镂空花砖墙包裹,不单保护夯土墙,还为庭院和室内遮阳庇荫。
3.作品图纸




版权声明:本文版权归有方所有。转载请通过邮件或电话与有方媒体中心取得授权。
上一篇:第三届中国建筑传媒奖最佳建筑奖入围作品:南山婚姻登记中心
下一篇:第三届中国建筑传媒奖居住建筑特别奖入围作品:西柏坡华润希望小镇(一期)