槃达建筑北京办公室

项目地点 中国大连
设计时间 2017—2018年
项目面积 8,000平方米
设计公司 槃达建筑北京办公室
“我希望能够用艺术为沉寂的城市空间带来新的活力,在重构原始空间体验的同时为建筑创造出新的标志,使其成为城市更新的名片。”
——孙大勇
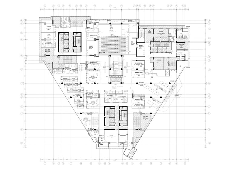
槃达中国办公室近期完成了佛罗伦萨文化艺术交流中心的改造设计工作,该中心位于大连市中山区港湾壹号,建筑面积约8,000平方米。原始建筑由地上四层商业中心、一层地下室和三栋三十层公寓以及一栋八层的艺术酒店组成。槃达的一期改造工作主要是四层商业中心的建筑部分。由于城市更新的需要,传统的商业空间既面临业态转型的长远思考,又面临功能升级的现实需要。


基于对艺术业态的思考,业主从意大利的艺术之都佛罗伦萨将两所艺术培训学校——ADA美术学院和IL.TRILLO音乐学院引进大连,同时邀请两所学院的老师赴大连为学生授课。使中国的孩子可以就近接触到水平较高的艺术教育,这一点对于孩子的成长具有长远意义。
有了两所艺术学校的入驻,原始的商业功能完全被置换,需要让一切功能都围绕艺术主题展开。原始的四层建筑,首层作为艺术街道增加了琴行、画材商店、画廊等功能,既为学校功能配套,也可以作为城市休闲空间;二层空间融入了绘本馆、亲子餐厅、艺术咖啡等功能,为陪读的家长创造休憩空间;三层和四层为ADA美术学校和IL.TRILLO音乐学校的主要教学空间和展览空间,其中包括美术教室、音乐教室、艺术家工作室、展厅和音乐厅。

新的业态带来新的流线组织设计:
首先,陪读的家长和孩子要分流控制,等候的家长和上课的孩子不能混在一起。
其次,咨询的客人和上课的客人要分区域布置,保证二者的相对独立性。
第三,美术教学空间和音乐教学空间要分开布置,美术教室对光线要求高,而音乐教室对声音和隔音要求高。
第四,音乐厅的课程教学和对外公开演出的流线要分开设计,既保证孩子的安全性也保证演出的专业性。
第五,底层教学和三栋公寓楼的住户要分流设置,保证住户的私密性和教学的独立性。
基于这些新的功能要求,原始的平层通透式的商业空间面临着全局式的改造工作。

我们首先把学校的接待主入口放在了首层西侧的转角处,由于建筑平面为三角形,所以这里是建筑中最醒目的位置,而且室外有独立的广场便于做室外招生活动,另外这里和室内的其他业态相对独立、互不干扰。这里是最合适的大厅入口位置,但是有一个弱点即这里无法与楼上联系,既不便于客户参观,也不便于孩子上课,于是我们增加了两部外挂电梯,直接把大厅和教室连起来,同时在大厅中为前来咨询的家长设计了休息区域。





传统的商场都有中庭空间,设置扶梯供顾客使用。但是在艺术学校中扶梯对于孩子来讲并不安全,同时挑空空间使用效率也不高。于是,我们取消了原始的扶梯,把四层的中庭空间设计成了一个垂直的宽窄不等的大楼梯,使这个区域不仅有了垂直交通功能,同时这里也成为一个公共休息空间,供孩子课间休息使用。作为艺术学校,这样的空间未来会有很多不同的活动在这里发生,比如展览、评图、聚会等,这些将由孩子们未来自己去发现和创造。这里的自然采光也让底部空间有了阳光,未来这里也可以作为垂直绿化空间使用。更重要的一点是,在挑空的顶部,还设计了自然开窗,利用自然对流可以为教室吸入新鲜的空气,同时节约能源。




三层的教室分美术教室和音乐教室。美术教室要求开放、灵活,同时三层的美术教室与四层的艺术家工作室、展厅内部要有联系,但是不能与音乐教室的学生流线交叉,所以我们在三层和四层的教室室外增加了一部外挂楼梯。这样不仅方便了美术教室师生的便捷交流,还丰富了建筑的外立面效果,使建筑具有更独特的个性。楼梯采用了三角形的空间形态,密肋式结构,内部的光影变化如同时光穿梭隧道一般,建筑师希望在这里可以激发孩子们更多的创造力。





相比美术教室的开敞明亮,音乐教室则要求安静而独立,所以音乐教室被设计成独立的小房间,墙壁采用良好的隔音材料和构造,门窗都采用45bt的多层隔音玻璃,保证教室内最佳的音响效果。在房间中还设计了彩色的吸音板,既可以吸收和反射空间中的声音同时还丰富了空间的艺术效果。




整个项目最有挑战的部分,实际是三层的音乐厅。设计师孙大勇说:“我记得第一次和IL.TRILLO音乐学校校长Maria女士碰面时,对方就提出希望能有一个音乐厅,因为在每年的圣诞节时,学校都会组织孩子们为家长做一次汇报演出,但是看到现场的空间高度不能实现时,她非常失望,那个眼神让我记忆犹新。”他再次回忆道:“回到北京办公室后,我和团队尝试了很多种可能,最后提出了一个非常疯狂的想法,可不可以拔掉两根柱子把三四层打通?”当我第二次见到业主时,我就这样问他。业主当时吃了一惊,经过讨论尽管实现难度很大,但是为了给孩子尽可能地创造一座良好的艺术学习空间,业主决定试一试。于是请来了当地优秀的工程师团队,经过多方案比较,最后采用了一种钢索斜拉式托梁的方式去掉了两根柱子和三层的楼顶板,这样实现了九米挑高的音乐厅空间,而为了实现专业配套,音乐厅还配置了专业录音室。设计团队也请来了优秀的声光顾问,确保设计能完美落地。当Maria校长第二次来到现场看到音乐厅呈现在她面前时,她向业主和设计师致以肯定并说这比佛罗伦萨学校的音乐厅还要棒。




“我想要的设计就是用技术的手段实现艺术创造。能够用设计去实现业主的追求,也是我认为做设计师最值得骄傲的事。”
——孙大勇
城市更新的过程并不仅仅是建筑空间的更新,同时也是对功能业态的更新。只有新的使用方式的介入,才可能为城市生活注入新的空间和机会,归根结底是对生活方式的再挖掘。基于当下的经济发展水平和人们的消费方式,找出最适合的功能业态,才是城市更新的重点。而建筑空间的改造需要满足新功能业态需求的同时,而建筑空间的改造需要在满足新功能业态需求的同时,用更加当代的设计语言和审美去和原始的城市肌理产生碰撞,这样才能为僵化的城市面貌带来新的生命力。就像当年的毕尔巴鄂效应一样,一座当代美术馆为一座颓败的工业小城带来了新的发展和机会。经过不到一年的时间,佛罗伦萨文化艺术交流中心的一期设计工作基本完成,目前已经对外正式营业。




完整项目信息
项目名称:佛罗伦萨文化艺术交流中心设计
项目类型:建筑改造设计
项目地点:中国大连
设计时间:2017—2018年
项目面积:8,000平方米
设计公司:槃达建筑北京办公室
主创设计:孙大勇、万书言、Chris Precht
设计团队:解玉红、冷君毅、朱玥、Anna Ludwig、丁昕、孟精远、顾媛、张巽、代赫迟等
灯光设计顾问:朱海燕
声学顾问:中广电团队
结构顾问:大连天工建筑设计院
摄影:夏至
版权声明:本文由槃达建筑北京办公室授权有方发布,禁止以有方编辑后版本转载。
上一篇:奇妙的屋顶:Toranoko托儿所 / TYO
下一篇:SANAA获胜,进一步了解新香川县立体育馆竞赛的前5名作品