汤桦建筑设计事务所
项目介绍视频 ©汤桦建筑设计事务所
设计单位:汤桦建筑设计事务所
项目地点: 广东深圳
建筑面积:67705平方米
设计时间:2018年
撰文:戴琼、郑晨曦
汤桦建筑设计参与了“福田新校园行动计划”——“8+1建筑联展”,并被选为深圳红岭中学(园岭校区)改扩建工程的最终实施方案团队。
Tanghua Architect & Associates participated in the “The Futian New Campus Action Plan” - “8+1 Architecture Joint Exhibition” and our design was selected as the final implementation plan for the reconstruction project of Shenzhen Hongling Middle School (Yuanling Campus).

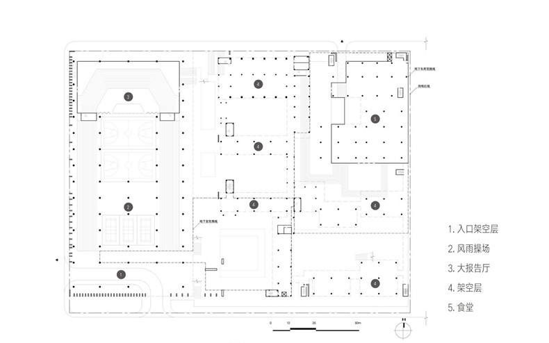
在快速城市化的进程中,教育的需求激增而土地资源稀缺。红岭中学(园岭校区)的任务书要求在30020平方米的用地空间中,将原有的19000平方米的建筑面积扩建至50000平方米,以容纳60个班,3000个学位(现有30个班)。除此以外,在对学校的两端进行改造、扩建的同时,中间部分需要保留。在相对局促的场地中,如果不能够很好地处理场地关系并连接东西两端的话,会导致中间保留的部分变成一道鸿沟,破坏学校的整体性。
Under the process of rapid urbanization, the requirement of education increases significantly while school land is insufficient. The mission statement requires designers to expand the existing 19,000㎡ building area to 50,000㎡ in a 30020㎡ site space to accommodate 60 classes and 3,000 academic degrees (30 classes are currently available). Moreover, When transform and expand of both ends of the school, the middle part retains. Thus,if we cannot handle site relationships well and connect the two ends, it will lead to a gap between the reserved middle part and the division of the integrity of the school.


在我们的记忆里,宽阔的操场是学校的主体,而建筑只占据很小的一部分。因此,我们希望能够最大程度地保留供学生自由活动的场地,还原这样的体验。由于在场地限制下,地面没有足够的空间,抬升一块地面便成为了一个可行方案;同时,这块抬升地面还解决了如何连接被割裂的几个校园空间的难题。
There were wide playgrounds in the schools of my generation, with architecture only occupying a small part. Therefore, we hope to restore the experience of our childhood school memory to a certain extent for the children now. To solve the problem of lacking space, we can insert a space to a certain height to connect several separated campus spaces.

在项目初期的讨论阶段,主持建筑师汤桦画了张草图,提到学校可以被划分为服务空间与被服务空间。在项目中,学生活动的公共区域、相连着的上下楼梯等基础设施是服务空间,而教室等专用空间是被服务空间。
During the first discussion, Mr. Tang drew a sketch and mentioned that our school could be divided into service space and served space. In our design, the common area for student activities appears to be the service space. Classrooms and some specific spaces exist as served spaces.


在我们的设计中,抬升的地面成为了一个起伏的地景、延展的地面以及活动的空间。
We have made several preparations for the floating ground, such as a rolling landscape, an extended ground, and an active space. However, the concept of the floating ground was actually come from the mission book.


如果我们根据任务书的要求将操场抬高两层,会导致平台下的有效高度变得局促,而且平台和教学楼只能通过三层连接。在最终方案中,操场被抬高了2.5层,使它能够更好地联系各个楼层,也有助于解决建筑内部采光通风的问题。
The task book requires that the playground be elevated for two levels, which, indeed, will bring about some problems. If we only lift it for two floors, the platform can only be connected with the 3rd floor, and its relationship with the streets is not good. It will also lead to insufficient space under the court. Therefore, we eventually lifted the playground up for 2.5 levels so that it could better relate to the floors and also help solving the problem of lighting and ventilation inside the building.

根据初步的估算,整个学校的用地面积约三万多平方米,而如果把抬起来的地面全部建成,将达到一万九千平方米,相当于在四层的空间里还原了三分之二的地面。这对学生来说将是一个拥有更多可能性的、宝贵的空间。
We made calculations for our design. The lifted ground, if all completed, is 19,000 square meters, equivalent to the fact that we have restored two-thirds of the ground in the four-story space. For students, it’s a valuable space where possibilities can be added to.

抬起的“地面”跟教学楼是直接连接的,而除此以外,教学楼的每一层都能和这块升起的大板之间有直接联系。我们在操场和老教学楼之间设计了一个多层系统,每一层的走廊都连接着公共活动平台,使学生从老教学楼的每一层都能直接到达这个漂浮的“地面”,不需要任何中转。这些有高差的空间在连接了教学楼的同时,它们的功能使用变得更加自然,不会太跳脱。
The raised "ground" is directly related to the teaching building. Each floor of the teaching building is also directly connected with this rising board by a multi-platform system. People are able to reach the public activity platform through corridor can directly reach, instead of transfering through a specific vertical transportation. In addition, the connection spaces, with elevation differences are designed to have different functions to be naturally utilize.

出于对安全和学生体力的考量,《中小学校设计规范》提到教室不能设置在五层以上。一方面,在通常情况下,发生火灾学生要疏散时,从六层到地面的时间会比较长,而最高层的学生要在很短的时间内到达地面几乎是不可能的。另一方面,由于经济和技术因素的限制,以一个中学生的体力,在没有电梯的情况下上六楼可能会比较累。然而,随着技术的进步,这两方面都已经不再是问题。在城市用地越来越稀缺的背景下,学校建设向高度上发展已成为必然。
For safety reasons and considering students’physical strength, the Code for Design of Primary and Secondary Schools confined classrooms to be set over five levels in height. If students are to be evacuated from a fire, it is almost impossible for the students at the highest level to reach the ground in a short time. Also, there were few elevators in schools in the past, due to economy and technology constraint. For a middle school student, it is tiring to climb up to 6th floor. Now that as the technology develops, many schools are equipped with elevators.

因此,教学楼四层架空层与抬升的地面相连,夹在上下各两层的教室之间,让学生在课间可以便捷地到达并利用这个空间。这个“地面”是完全敞开的,相当于一个避难层,是方便大家更快到达的安全场所;所以教室突破到第六层并不会对规范所顾虑的两个方面造成影响。
Therefore, we have a "ground" on the fourth floor, with two classrooms above and two classrooms below, so that students can easily and quickly reach this space during class hours, maximizing the utility. And this "ground" is completely open, equivalent to a security layer, or say, refuge layer, in fact, can make everyone get to a safe place faster.



井字结构被统一应用于西侧运动场、风雨操场、报告厅等大空间,而在包含了像传统的教室这些小空间的东侧,则使用了正常的结构方式。建筑采用了型钢混凝土的结构,比起传统的预应力梁,这种结构能用更小的梁高跨越更大的跨度。
Dealing with the large spaces such as the weste sports field, wind and rain playground, and lecture hall, we adopted a unified cross beam. For the small spaces such as traditional classrooms, normal structures are applied. In addition, the steel reinforced concrete that we use is more powerful than traditional prestressed beams.

建筑的外形和特征应该反映其功能的本质,在总图肌理上会形成一个韵律——西侧是一个面状的体量,中间有一些线性的连接,到了东侧则变成了块状。
The shape and characteristics of the building should reflect the nature of its function. A rhythm is formed on the texture of the master plan: The west side is a face mass, with some linear connections in the middle, and a block on the east side.

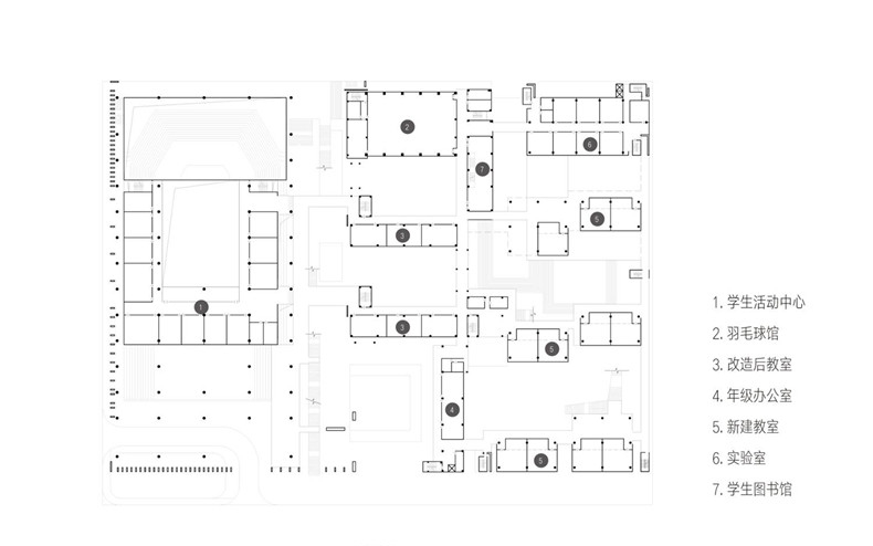
由于在整个扩建工程进行的时候,现有校园依然要保持使用,所以任务书对项目进行了分期。西边是第一期,东北角是第二期,东南角是第三期。第一期的主要任务是将球场抬起,一方面有效的增加了学生们的活动场地,另一方面也增加了不同功能的学生活动用房,将第一期拆除的功能暂时容纳在里面。第二期和第三期主要是对教学功能的扩容。一期和二期相对会比较快实施,而第三期则需要等待四栋住宅楼的拆迁后,和整个红岭片区的改造一起实施,所以动工时间上仍不确定。
Since the existing campus is still in use during the entire expansion project, the project is divided into phases. The west side is the first phase, the northeast coer is the second phase, and the southeast coer is the third phase. The task of the first phase is mainly to lift the stadium. It will effectively increase the students'' activity venues with more functions involved. The second and third phases will be the expansion of teaching functions. The first phase and the second phase will be implemented relatively quickly, while the third phase needs to wait for the transformation of the entire surrounding Hongling Estate. There are still four residential buildings in the current site, so that the demolition will be further discussed, lead to an uncertain construction time.

方案的建设过程类似拼积木,因此分期建设并不会影响方案的实施。作为方案核心的抬升地面将会随着每一期的完工不断扩展,不断地填充不同的功能。随着建设进度的推进,校舍的功能将会越来越完备,给学生带来的乐趣也会越来越多。
Our plan is like building block, to some extent. Thus the phased construction will have little impact on the functions. The core elevated ground will continue to expand with the completion of each phase, with more functions to fill in. As the construction progresses, the architecture will become more complete in function as a whole, and bring more fun for students.





完整项目信息
地址:广东深圳
类型:学校
业主:福田新校园行动计划组委会
设计时间:2018年
用地面积:30020平方米
建筑面积:67705平方米
设计团队:汤桦、邓林伟、刘华伟、郑昕、赵宇力、何凯雄、郑立鹏、戴琼
原文编辑:戴琼、郑晨曦
版权声明:本文由汤桦建筑设计事务所授权有方发布,禁止以有方编辑后版本转载。
上一篇:延续中的主题变奏:上海宝业中心室内设计 / 零壹城市
下一篇:重构秩序:九熹 | 大乐之野·胡陈粮仓度假酒店 / 景会设计