
“医疗建筑,由于功能复杂,许多建筑师避而远之,因此在公共建筑中,医疗建筑显得较为呆板、冷漠,八作建筑设计事务所坚信医疗建筑可以拥有灵动的空间、依然可以温馨。
2017年是八作的第四个年头,随着项目的建成,我们的理想也在一一接受检阅,相信2018、2019……,我们的理想会与现实越来越近。”
——八作建筑设计事务所
八作建筑设计事务所办公室位于北京,妙应寺白塔之侧。
事务所成立于2013 年,专注医疗和养老及文化类建筑,关注品质与本土文化。




丁青,位于西藏东部昌都地区,这里是横断山脉的源头。
在藏文化中,医院不仅仅是治病救人的场所,同时也是祈求神灵庇佑的精神家园。丁青县藏医院,在琼布丁青的山脚下一片高低起伏的土地之上,八作的任务是为这里的藏族同胞建设一座健康和精神的庇护所。
空间布局:传统的藏式建筑在空间上将物品牲畜、人、神分为三重不同层级(上- 神,中- 人,下- 牲畜及物品),我们将此文化引入项目,附属功能在下,住院功能在中,治疗功能在上。
台地处理:项目基地 10 米断坎为基地不利因素,本设计利用屋顶拓展断坎以上活动空间,利用建筑减少护坡面积,形成独有空间和景观。
藏医优化:传统藏医仅有治疗空间,本设计采用现代工艺优化藏医治疗,实现“患者- 治疗- 医护”的模式。

项目地址:西藏自治区,丁青县
建成时间:2017年
建筑规模:3800平方米
设计团队:张曙辉、王淼、贾若天、刘欢


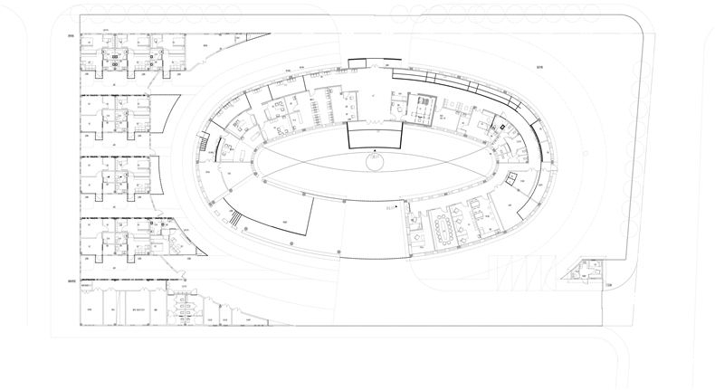
冈仁波齐,对于西藏,对于信奉佛教、印度教、耆教和苯教的信众及朝圣者来说是世界的中心,巴嘎乡位于冈仁波齐峰脚下,是信徒们转山祈福的起点和终点,八作的任务是,在这佛教世界最神圣的区域建造一座为信徒和游客服务的卫生院。
“看天”:西藏有着其他任何地方极难拥有的湛蓝的天空,沐浴在这样的天空和阳光下本就是一间难得的享受。圆形的建筑可以含天括地,如天坛般,让人在无棱含蓄的圆形内院感受天空的美好。
“看山”:巴嘎乡整个镇都因为冈仁波齐而存在,这里的卫生院便应以此为出发点。庭院、大厅、走廊、房间均是欣赏冈仁波齐神山绝佳的地点。另外在入口沿坡道盘旋上升,如步青云,越来越能欣赏到神山的魅力。
“修佛心”:医院是治疗身体的地方,传统藏医认为得病是身心不协调导致。人们总会绕着医院转经祈福,让药师佛协调众生,达到身心合一。圆形的建筑给当地提供了绝佳的转经祈福场地,同时也是修身念佛的体悟之地。



项目地址:西藏自治区,阿里地区,普兰县巴嘎乡
建成时间:2017年
建筑规模:1900平方米
设计团队:张曙辉、王淼、刘继霞、刘欢
八作建筑设计事务所
版权声明:本文由八作建筑设计授权有方发表,禁止以有方编辑后版本转载。
上一篇:有方征稿通告:为优质内容付费
下一篇:再简单的场地都蕴含力量:合木建筑的2017年