源计划建筑事务所
“源计划建筑师事务所设计的博物馆建筑毫无疑问是当代的,甚至有些激进,同时却又充满当地的乡土气息。”
——法国《费加罗报》评论,2017年12月4日
连州,地处粤北的这座小城,以“连州国际摄影年展”为人所熟知。隐藏于老城里的连州摄影博物馆刚刚落成,新旧之间,上演各自的庆典。

连州,一个群山环绕的小城,初来的访客已很难从略显灰暗的老城中看到她曾经的辉煌,却很容易被小街小巷里细腻的街道生活,简单质朴的生产作业方式和各种美味的食物所打动。
连州摄影博物馆坐落于连州旧城中山南路,连同中山北路、建国路、城隍街一带,沿线基本保持原有民国时期的城市风貌,是市区内仅存较为完整的一片历史文化街区,连州人亲切地称这里为“老街”,一个保有无数记忆的地方。在这里,一边是年久失修的斑斑驳驳的老屋和不断从老城撤离后留下的落寞,另一边是林立的不同年代建筑门窗、阳台、墙体的奇异组合,和里面已难得一见的各式前店后坊——弹棉花炸麻油制白铁皮的热热闹闹,强烈的差异和冲突让人着迷。
作为一个外来者,连州国际摄影年展已经奇迹般连续进行了13年,被公认为中国最具专业水准的摄影节。她的博物馆建设是连州老城复兴计划的重要发生器,也是向老城的一次致敬。



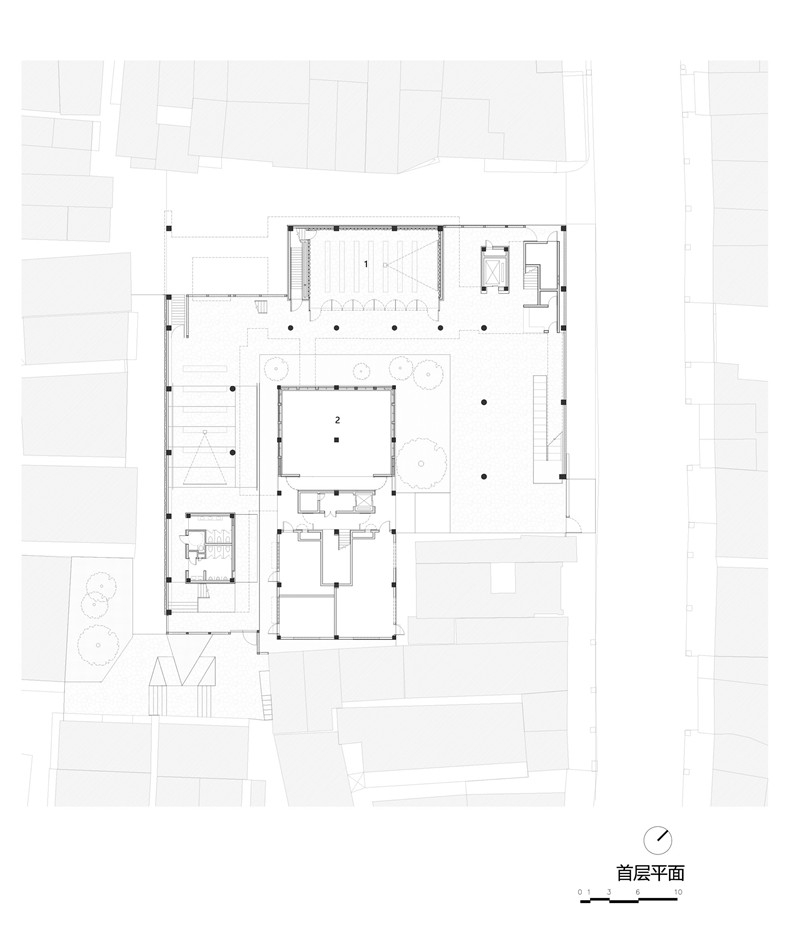
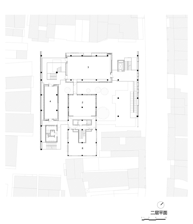
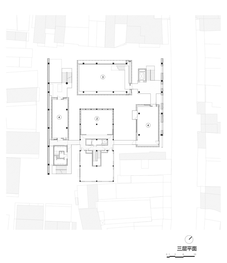
摄影博物馆由新旧两幢建筑相互咬合构成。新建筑立面和屋面的折线形态充分尊重连州老城的城市肌理,传统“连州大屋”的意象,象征老城区的复兴。新屋面的三个连续坡面成为博物馆核心空间一系列展厅的覆盖和延展,展览和公共活动都发生在同一屋檐下,同时为建筑内部空间创造了丰富的垂直变化,并与保留的三层平顶旧建筑形成对比。屋面连续地延展至建筑立面伸向老街,立面以内的小广场完全向公众开放,内部空间转化成城市肌理的一部分。屋顶的露天小剧场连接着博物馆新旧建筑,是整个展览流线的高潮,隐身老城的博物馆在这里将老城斑驳的屋面天际线和远处层叠的山水重新组合起来。






建筑师试图将博物馆通常的机构性和纪念性,分解为一个与老城肌理同构的立体观展游历,让城市的日常性与当代视觉艺术之间产生强烈的时空拼贴感。完整的“白盒子”空间被解构为一系列由户外连廊、楼梯串联起来的中小型展览小屋。脱离了“博物馆白盒子”的模式,连州摄影博物馆将最当代的摄影艺术以连州老城作为背景进行串联。在对或严肃或调侃或抽象的当代摄影艺术的游历过程中,穿插着框景的老城日常生活场景,强烈的差异和冲突让人困惑,着迷,沉思。独特的视角里回望我们的城市,奇异的场景构建出新建筑的空间序列,新旧之间是各自的庆典。它静静地藏身于老城的市井中,悄然融入、改变着周边的生活。







在材料的运用上,建筑师同样希望体现上述的时间的厚度和可游历性,几乎所有的建造材料均来自地方,建筑以一种奇异的方式将这些粗犷的新旧物料组合成新的时空叙事和场所体验。连续屋面延展至外墙面的材料,由附近城乡旧屋回收来的灰瓦和当地被称为西岸石的黑色片岩混合砌筑而成。这种于老城匹配的深灰色调由屋面、墙身延续至建筑的基座与地坪。整个博物馆的架空首层地面和建筑墙身依然以西岸石片铺砌,与新旧建筑之间的U形绿化庭园相映成趣。所有新建展厅外墙均采用传统的白铁皮(镀锌钢板)与旧灰砖墙体片段的组合,混凝土与黑色钢板组合的连廊贯穿其中。在博物馆原址已拆除的果品仓库里曾经举办过十一届摄影节,是许多人共有的回忆;果品仓的木制格子窗户有着那个年代特有的气息,建筑师有意将其回收,重新镶嵌在博物馆新建的连续屋面及其外墙面上,新旧交融,宛若一幅意味深长的抽象画。


外表厚重质朴的“大屋顶”,其内表面是唯一一种非本地的工业产品——细腻柔和的半透明PVC波纹瓦,它令建筑的“内外”产生了材质上的反转,并为整个内部游历和公共活动在黑白灰(摄影展示的基本要求)之外带来一丝淡淡的暖意。同时,在展览期间,PVC波纹瓦通过内透光为主展厅和整个博物馆公共空间提供了柔和的光线,戏剧性地为老城和新博物馆的并置与交融提供了一个抽象的背景。整个博物馆的首层、半户外中庭及花园,与老城主街和内部巷道系统联通,目标是全天候为老城居民提供一个与艺术结合的公共开放空间,而不仅仅是作为一个专业和公共展览的机构。












建筑师:源计划建筑师事务所O-office Architects
项目地点:中国连州
主持建筑师:何健翔&蒋滢
项目建筑师:董京宇
设计团队:陈晓霖,林礼聪,张婉仪,邓敏聪,王玥,黄城强,何文康,尹建江,曽喆,彭伟森
结构顾问:宛树旗
机电顾问:经略机电设计咨询
标识:another design
完成时间:2017年12月
建筑面积:3400平方米
摄影:张超,陈小铁,黄城强
版权声明:本文由源计划建筑师事务所授权有方空间发表,欢迎转发禁止转载。
上一篇:2017年中国最受关注的公共建筑
下一篇:2017年里,这些建筑师斩获全球大奖