魏春雨地方工作室

李自健美术馆为湖南大学设计研究院地方工作室近期完成的作品。项目位于长沙市洋湖湿地,毗邻湘江。这一美术馆的设立,主要为收藏并展出著名旅美画家李自健的作品。



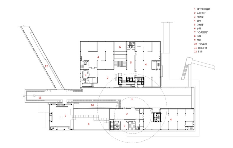
提及李自健,他早年成为星云法师的俗家弟子,美术馆的落成实现了把他散落在世界各地的绘画作品收集回故乡母亲河——湘江河畔的心愿;为了报答其恩师,美术馆除画家的个人常设展厅之外,还设置了星云法师的书法展厅、“心灵空间”、“禅茶”、书屋等功能。





设计在契合画家诉求与馆藏艺术品展示类型同时,试图消解传统“殿堂”型美术馆相对内向、封闭、中心式的空间结构,而植入一种开放的、公众可参与的、能接纳市民日常活动的城市属性空间。




据此,设计对传统“曼荼罗原型图式”进行转译与“现代性”重构,使美术馆呈现出“周边式的构图原则”,赋予其多义性与开放性的空间特质;并且,建筑体量被适度拉开,限定出一个平行关系的空间通廊,通过强化这条空的水平轴线,建立湘江与湿地的景观关联,其轴线指向地平线而消失,产生出一种永恒与静态的空间体验。



同时,美术馆的公共空间被置于一个巨型圆环的檐下,光线透过如同日晷般的巨型圆环投影在恒定的、深景透视的空间廊道中,留下时间的印迹;且随着时间推移,使得存在于强烈静态空间体验中的人又能同时感受到光影与云卷云舒的动态变化,而这种“共时性的差异体验”正是建筑所刻意塑造出来的心理图式——在永恒中强调时空的轮回与变化。









设计:魏春雨 刘海力
项目位置:湖南省长沙市洋湖湿地公园
设计团队:尤志川 罗学农 吕昌 彭军 杨丽 张光 沈昕 周宇 慕诗雯 药志伟
室内:李曦 李静波
框架结构:郦世平 朱建华
钢结构:舒兴平 刘洋 田孟迪
设备:郑少平 毛颖杰 梁筱宁 张宁 康伟
摄影:李应军 胡骉 刘海力 晟龙
项目时间:2014-2016年
材料:石灰岩 花岗岩 洞石 U型玻璃 钢材
建筑面积:25050 ㎡
设计单位:湖南大学设计研究院|魏春雨地方工作室
版权声明:本文由魏春雨地方工作室授权有方空间发表,欢迎转发禁止转载。
上一篇:建筑师在做什么126 | 傅英斌:尝试摆脱以往乡建化妆式的改造
下一篇:深圳艺展中心改造设计 / 汉诺森