名谷设计机构

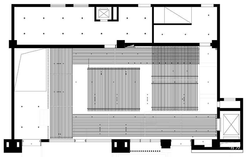
竹里馆位于南京市江东中路,这栋三层临街小楼是名谷设计机构的设计项目。由外立面的竖向线条延伸至主入口玄关,形成侧向分流进入一层茶歇区,将竹用单一纬度的围合方式形成半空间限定区间,茶座布置在竹篱一侧,形成二方连续式的空间关系,并由此聚合成一层的功能核心——“篱园”。此时,围绕着“篱园”的顶面竹篱正发生着纬度关系的转变,并将吧台、出品、服务动线等功能串连起来,与之前的功能核心形成咬合关系,最终指向通向上层的垂直电梯。



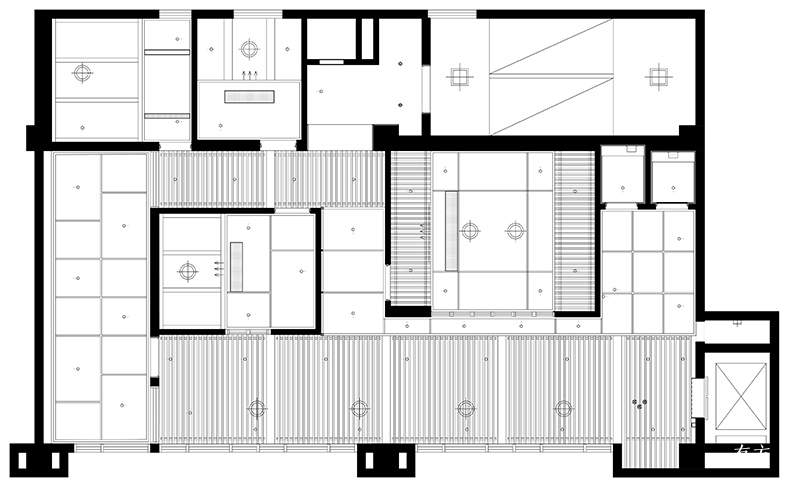
通往二层北边的步行体验式楼梯,是用氧化钢板制作的。二层茶歇区临窗布置,使入座者能感受到光线透过窗棂散落桌面的景象。向南的尽头,由横竖交织的排竹分割出茶座与电梯厅。向东延伸的排竹与用作洗手功能的饮马槽托举而上,水源从顶面透过竹管顺流而下,饮马槽的沉重之势被立刻削减。


二层包间区的入口被收纳在一个相对有压迫感的体量内,“压迫”是为了更好的“释放”。在没有自然采光的现场条件下,取西边分割包间与公共区的墙面凿壁借光,自然光线通过茶歇区传递到包间内,被过滤后的光线像一张透着微光的网。包间区过道内的墙面除了混合草茎的暖白腻子,还有七百年历史的城墙砖陈设其中,在行走中给人穿梭时光的错觉。包间内壁留白,取拙朴之姿态,留下想象的空间。


三楼全部设置为独立茶舍,依场地东西而立,通道中置,似林中小径,在南北进深三分有二处微微转折,借扭转之态,一个看似溪边草庐的建筑体离地而起,屋檐下探,竹窗由内而外撑起。在狭长的过道中,为获得“静谧中探寻”的行走体验,并有效地将自然光线引入到一个没有直接对外采光的封闭空间。而顶面转折处,被雕塑化处理的局部搭建,在空间获得自然光线后表现出的姿态,有效地软化了相对硬朗的空间对接。包间依旧保留拙朴、留白的特点。










项目名称:竹里馆
设计单位:南京名谷设计机构
设计师:潘冉
设计撰文:八路
设计师简历:名谷设计机构创办人
项目地点:南京市江东中路
项目面积:900平方米
竣工日期:2016.7
主要材料:竹、泥灰、木板
版权声明:本文由名谷设计授权有方空间发表,欢迎转发禁止转载。
上一篇:阿尔托的6道住宅难题
下一篇:国内高校建筑讲座与展览 | 五月合辑