OPEN建筑事务所


海洋中心是OPEN为清华大学研究生院海洋学部设计的一栋实验及办公楼,其场地位于研究生院的东端,紧邻主校门。速生的大学城是中国近年来新城发展的一个个缩影,它们远离城市,孤岛般地与世隔绝,又常常大而无当,缺乏人性化的公共服务设施。OPEN希望借助新建海洋中心的契机,让这栋建筑以一种崭新的姿态介入校园生活,探索一种与以往完全不同的可能性:在这里,建筑空间流动愉悦,公共设施的注入让其以开放的形态吸引所有师生参与;在这里,那些智慧的头脑可以不期而遇,跨学科的交流成为自然而然。

设计从组织整个校园的公共空间入手。作为校园主轴线最东端的建筑,海洋中心将这条轴线翻折起来,盘旋地向天空延伸;同时,它注入了校园所缺乏的公共机能,形成了充满活力的“垂直校园”。




传统院落式的校园在这里被重新演绎,90度的翻折形成了一个垂直的院落体系。而海洋中心里有多个不同的研究中心,它们之间拥有相对独立又互相依存的关系。这种关系也表达在这个垂直院落的虚实关系里——每两个中心之间插入一个水平的园林式的共享空间,包括岛屿状的会议室、头脑风暴室、展厅、科普中心、交流中心、咖啡厅等。另外每个中心里的实验室部分和办公服务区又被水平地拉开,形成垂直贯通的缝隙,穿梭其间的室外楼梯将这些水平及垂直的共享空间蜿蜒地联系起来。



随着时间的推移,这些共享空间里的绿植也会日渐繁茂。地面的花园会向上一直延伸到60米高的屋顶。屋顶上,有一个小小的露天剧场,它将是校园里拥有最特别景观的360度观景平台,在这里既可以眺望远山感受自然的云开云散,又可以俯瞰深圳野生动物园里悠闲的长颈鹿们。


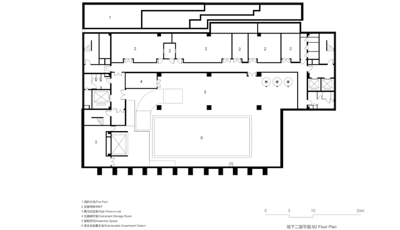
海洋中心的地下有一个很深的特殊实验水池。在建筑南面的入口广场,可以看到三个方向各异的清水混凝土圆锥形体量,它们为地下实验室提供采光,也是主入口处的标志性雕塑。三层会议室采用圆窗,房间内上下跳动的圆洞如船上的舷窗,隐约喻示着海洋。南北立面,混凝土遮阳百叶角度变化的韵律来自德彪西的《大海》;东西立面,鲸鱼呼唤同类的声纳图被抽象出来形成圆窗波动的逻辑。海底的光线随深度增加而变少,海洋中心公共空间吊顶的蓝色也从高层到低层逐渐加深。






深圳的自然气候条件催生出了海洋楼的建筑形态。大量的半室外空间可以调节建筑的微环境,板楼充分利用自然通风,立面的遮阳系统有效地降低热负荷,同时满足不同功能的采光与景观视线需求。设计团队力求创造低造价高效率的建筑,大量采用被动式的节能策略;建筑外墙采用素混凝土,以降低后期维护成本。


设计团队将实验楼需要的设备机房和竖井,与垂直的交通筒体结合,集中地布置在建筑的两端;再通过走廊的天花,将各种建筑设备系统水平地送到实验室,这样就可以方便地重新划分,并得到连续的实验室空间,可以适应未来实验室使用需求的变化带来的内部布局调整。实验室部分按合理的模数规划,空间规整开放。办公和辅助空间临近实验室,既方便研究人员又相对安静和独立。













设计年份:2011-2016
设计阶段:完成
建设方:深圳市建筑工务署
功能:实验室、办公室、会议室、图书馆、教室、交流空间、咖啡厅
建筑面积:15884平方米
用地面积:2439平方米
项目地点:中国深圳,西丽大学城
项目团队
主持建筑师:李虎、黄文菁
设计团队:Victor Quiros、赵耀、张汉仰、周亭婷、闫迪华、周小晨、乔沙维、张畅、戚征东、Joshua Parker、陈忱、Laurence Chan、金波安
合作设计院:深圳市建筑科学研究院
摄影:Iwan Baan、张超
版权声明:本文由OPEN建筑设计授权有方发布,禁止以有方编辑后版本转载。
上一篇:建筑图解 | 美女爱野兽,我们爱城堡!
下一篇:艺术不仅可以出现在历史建筑中,也可以出现在街市摊档甚至普通的出租屋里