
编者按:回到乡村,还记得曾经的模样吗?在南京的桦墅村,建筑师周凌和他的设计团队,从村口建筑着手,试图恢复中国传统乡村的“村口”空间,期望重溯传统。

乡村铺子位于桦墅村村口,设计团队希望由此设计重新塑造村口的公共性。设计使用了传统的布局法、工法,将村口的这栋老房子改造成为了用于公共活动的空间场所,期待以此完成对村口传统的重建。
The Rural shop is located in the village entrance. The program tried to restore the traditional Chinese ''Rural Entrace Space'' by converting an old house into a public space, hoping to use some traditional arrangements and construction methods to reshape the publicity of the village.


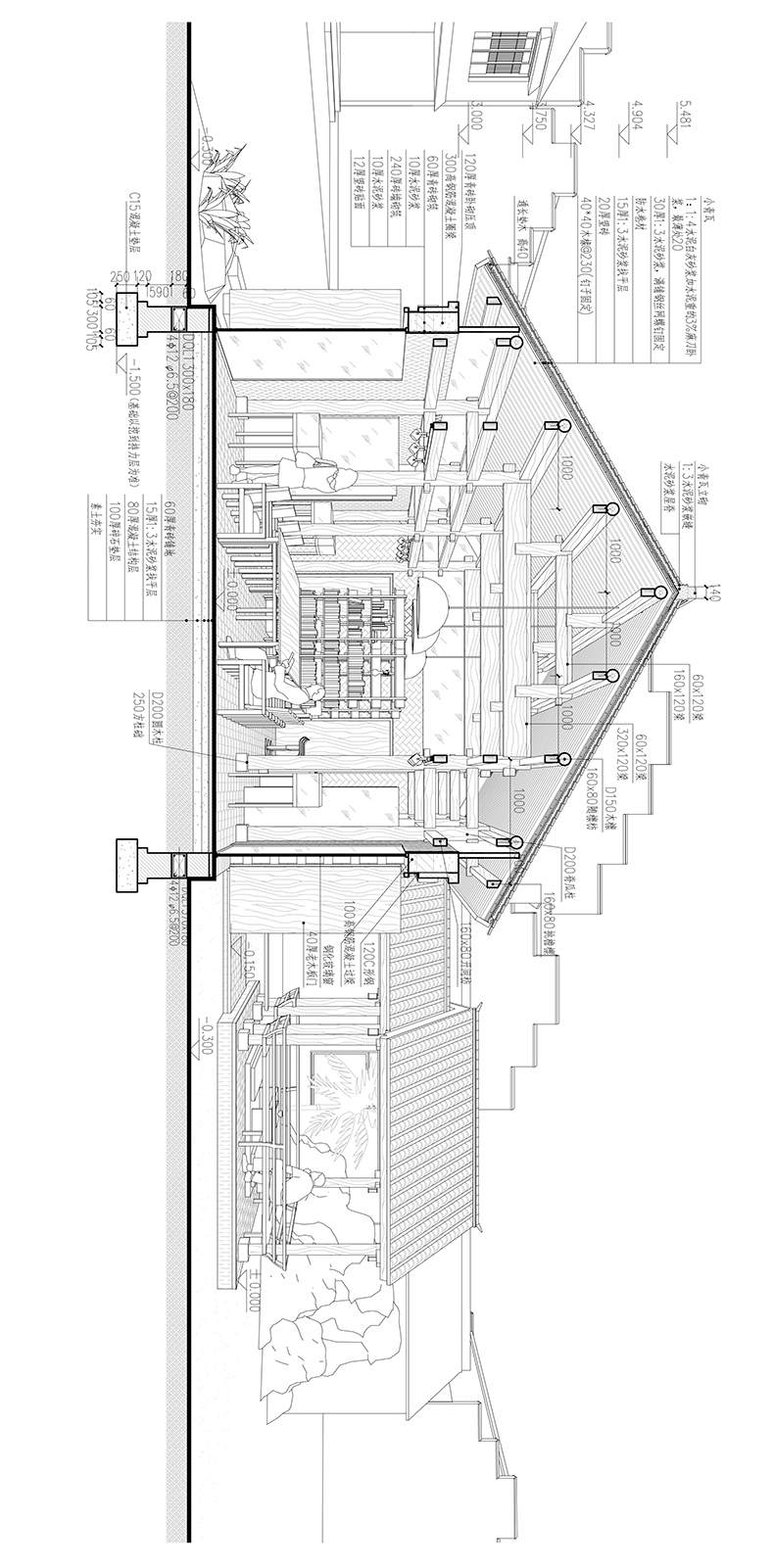
原建筑是一间一层的三开间房屋,面宽11米,进深7米。设计按照宅基地原址重建了这个房子,并在外侧结合村口景观广场和大树,加建一个6米×4.8米的公共廊子供村民和过往游人休息交流。
The original village building was an ordinary three-bay house, 11 meters wide, 7 meters deep. According to the orginal site, we built a 6m x4.8m public gallery for villagers and past visitors to rest and communicate in the outside combined with the village landscape plaza and trees.






屋架采取传统中国的木构做法,建筑师希望它的形式能回溯传统地方性格,呈现江南本土的建造体系。设计参考了皖南、婺源乡村里的一些公共建筑,如路亭、廊桥等,这些乡村建筑类型是过去江南乡村普遍存在的,只不过因交通不便等原因,这些建筑在皖南和婺源得以保留下来,基本可以把它们理解成江南乡村过去普遍的样子。
They chose the traditional Chinese wood structure as roof frame, hoping to make the form back to the traditional local character, reflecting the construction of the local system. The design also refered to public buildings in the Wannan and Wuyuan villages, such as pavilions, bridges, etc. These rural construction types had been widespreaded in the past Jiangnan villages. Thanks to Traffic inconvenience and other reasons, these rural buildings were retained in southe Anhui such as Wuyuan village. The basic form could be understood as the Jiangnan village in the past in general.





村里有一些空斗砖墙的砌法,建筑师受其启发,为主体建筑设计新的砖墙。室外的廊子延伸到室内,室内外部分结构一致。如今,乡村铺子已确定由南京当地经营者进驻,未来会用于传统农产品的展示与售卖,周末则与村口的景观广场一同,成为村民和游客买卖物品的乡村集市。
Outdoor corridors extended into the interior, indoor and outdoor structures were the same. Today local managers in Nanjing have participated in the village shop. In the weekdays traditional agricultural products will be sold and in display and in the weekends it will be a rural market in combination with the village''s entrance square for villagers and tourists buying and selling goods.









剖透视图 ©周凌工作室
乡村铺子
设计单位:南京大学建筑规划设计研究院/周凌工作室
建筑师:周凌
地点:江苏省南京市栖霞区桦墅村周冲
设计时间:2014年9月
竣工时间:2015年6月
业主:东联(上海)创意设计发展有限公司
设计团队:仇高颖、殷奕、吴仕佳、全萍、吴超楠
基地面积:668平方米
建筑面积:150.68平方米
结构形式:砖木结构
摄影: 侯博文
A Rural Shop at Huashu Village, Nanjing
Design Studio: Architects Institute of Architecture Design & Planning CO. Ltd, Nanjing University /Atelier Zhouling
Chief Designer:ZHOU Ling
Location: Zhouchong, Huashu Village, Qixia District, Nanjing, Jiangsu Province
Design team: QIU Gaoying, YIN Yi, WU Shijia, QUAN Ping, WU Chaonan
Project Year:09/2014– 06/2015
Site Area: 668 square meters
Area: 150.68 square meters
Structure: Brick and Wood
Photo: Hou Bowen
编辑 : 高天霞
校对 : 原源(实习生)
Editor : Gao Tianxia
Proofreader : Yuan Yuan
版权声明:本文由周凌工作室授权有方发布,禁止以有方编辑后版本转载。
上一篇:从《看不见的城市》读大连
下一篇:范斯沃斯住宅即将搬上屏幕,拍成奥斯卡热门大片?