编者按:李兴钢,建筑师,工学博士。中国建筑设计研究院有限公司总建筑师、李兴钢建筑工作室主持人。曾获得中国青年科技奖、中国建筑学会青年建筑师奖等;举办作品个展“胜景几何”;参加第11届威尼斯国际建筑双年展、德累斯顿“从幻象到现实:活的中国园林”展等重要建筑及艺术展览。

李兴钢曾经说过,在他迄今为止的工作中,有两个方面的线索:一是在当代建筑中对传统之呈现可能性的兴趣。这些传统包括较早期感兴趣的中国建筑和城市营造体系,也包括最近若干年逐渐投入研究精力的园林和聚落核心是如何确定人工的造物即建筑与不可或缺的自然的关系,以及人在其中如何拥有物质的和精神的生活。这一线索倾向于形而上的,更加靠近人的思想和身体,以及精神体验;二是对建筑中几何和结构的兴趣。由结构、空间、形式按照某种特定的、朴素而简明清晰的几何逻辑相互作用和转化的关系。这一线索倾向于形而下的,更加靠近建筑的本体和构造。
由城市、建筑到园林、聚落,由“复合的城市与建筑”到“建筑的发现与呈现”,由“喧嚣与静谧”到“几何胜景”,其实一脉相承,凝炼于当下的思考与实践的方向和路径,由中国及东方的传统入门,而进入到一种关照人类生活空间营造的语境。
在李兴钢看来,当下的城市和建筑世界,无论话语、文本和实物,多元、丰富,也嘈杂、喧闹,却总有一些人和他们的创作令人沉静、感动、神往。
在中国的传统中,城市是放大的建筑,建筑是缩小的城市。一幢小住宅,一个四合院,也可以看作是一个小小的城市;整个紫禁城乃至整个北京城,也只可以看作是一个庞大的建筑。所以,建筑中包含着“建筑”与“城市”。建筑是“城市”与“建筑”的统一体,或者说是建筑可以是“建筑”,也可以是“城市”。所谓的“城市”与“建筑”,具有平面、空间布局的同构性。“建筑”通常有其室内与室外空间之分,正是其室外空间和形式形成了“城市”空间,也就是说“建筑”的室外就是“城市”的室内,我们在塑造“建筑”的同时,也就形成了“城市”。


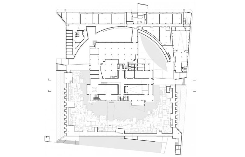
2015年完工的商丘博物馆,是较为完整体现“复合的城市与建筑”理念的建成项目。商丘博物馆位于商丘西南城市新区,收藏、陈列和展示商丘的历代文物、城市沿革和中国商文化历史。博物馆主体由三层上下叠加的展厅组成,周围环以水面和庭院,水面和庭院之外是层层叠叠的台地绿植和其外围高起的堤台(下面设室外展廊)。


现存良好的归德古城——典型黄泛区古城的形制特征,被转化和再现为商丘博物馆的建筑布局、空间序列和形态语言,上下叠层的建筑主体也喻示了考古学中的“城压城”埋层结构,体现自下而上、由古至今的陈列布局,使得这个建筑成为一个“微缩城市”式的建筑,博物馆犹如一座微缩的古城。城堤、城墙、城桥、城门、十字街道、台地水面,都有建筑化的特定空间与处理手法相对应,并如同有效运作的城市一样,统合为有机合理的整体。
对李兴钢而言,建筑的神秘在于它早已存在那里,按照使用者的自然天性和建筑自身的朴素逻辑。而所谓设计,只不过是在分析了种种给定的条件和多样的可能性后,寻找到那几乎唯一完美的答案。
研究现状、发现线索、制定策略、表达呈现——这是一个发现与呈现的过程,同时它也是一个由理性到感性的过程:以理性思考开始,渐以感性表达终结。一个建筑也只有一次机会成为它自己,作为建筑师,无法从头再来,这是这个职业的遗憾和挑战,也是这个职业的魅力所在。


元上都遗址是元代北京骑马民族创建的一座草原都城的遗迹,位于内蒙古的锡林郭勒盟的冲积平地上。博物馆选址于元上都遗址南向5千米的乌兰台东侧面向遗址方向的半山腰处。基地的场所气质决定了设计的走向。建筑结合并充分利用现状废弃的采矿场来布置博物馆的建筑主体,以修整被采矿破坏的山体。
遵循对文化遗产环境完整性的最小干预原则,将大部分建筑体量掩藏在山体之内,仅半露一小段长条形体,隐喻遗址的城垣,将其由正北向东旋转18°,与山体等高线相交,并指向都城遗址中轴线上的起点——明德门。



建筑主体的外墙和平台、挡墙,采用了一种掺氧化铁骨料的清水混凝土,使外露的建筑体量呈现出一种斑驳的红色,犹如从山体中延伸而出,与四季变化的草原丘陵相应和,呈现出广袤与苍凉的场所气质。
而位于四川大邑安仁古镇的建川镜鉴博物馆暨汶川地震纪念馆,是民间投资建设的建川博物馆聚落中的单体建筑之一,最初设计为镜鉴博物馆,收藏展示文革时期的各种镜面。汶川地震发生后,通过设计改造增加了地震纪念馆,以“震撼日记”的形式收藏和展示地震文物和相关艺术创作,成为一个两馆一体的复合型博物馆。


博物馆被确定为一种复廊式的展览空间和线型延伸及组合的形态,优先占满街面布置的商业作为某种先在和既定的“现状”构成了立体的博物馆边界,被围合在街坊内部的空地则成为一个内向的城市园林,博物馆则作为园林中的廊式建筑,和商铺一起构成了无绝对边界、生活化的小型城市复合体。
设计使用的主要外墙材料是清水混凝土和红、青两色的页岩砖,当地丰富的砌砖传统在这里体现为在同一砖砌模数单元控制下,不同的室内功能对应不同通透程度的砖砌花墙,以满足不同的采光、通风、景观和私密性等要求。为此还专门设计发明了符合上述模数的透明“钢板玻璃砖”,造价低廉并易于加工,用于花墙上对应室内空间的砌空部分。


在人工与自然“互成”的线索之下,“几何与胜景”成为我们逐渐明晰的实践方向。
“几何”,与建筑本体相关,是结构、空间、形式等互动与转化的基础。赋予建筑简明的秩序和捕获胜景的界面,体现人工性与物质性。“胜景”,则指向一种不可或缺的、与自然紧密相关的空间诗性,是被人工界面不断诱导而呈现于人的深远之景,体现自然性与精神性。
“胜景”通过“几何”而实现,以建筑体性营造空间诗性。形而下的“几何”与形而上的“胜景”互为因果,最终“几何”转化为“胜景”。说到底,就是营造人工与自然之间的互成,它产所构成的整体成为使用者的理想建筑和生活世界。
在对当代现实的自我设问中,李兴钢进行的一系列以“几何”营造“胜景”——以建筑本体营造自然空间诗性的实践以作回答。不同项目所处地域或城市中自然因素的多样性和唯一性成为设计的引发因素。企图在不懈的实践中表述对传统的敬意,对现实的改变,对一种文化及生活理想的回归。
建成或即将实施的项目中,从最初的草图、构思,到详细的设计,再到细部和实施过程,李兴钢着力于每个建筑设计中的“几何”之经营——形式、结构、空间及其互动状态,以及“胜景”之营造——建筑本体与自然或人工之景之间所形成的空间互成状态,体现着既定方向上的持续追求。


2010年开始设计的元上都遗址工作站(2010-2012),是锡林郭勒大草原上的一个小建筑,位于世界文化遗产——元上都遗址的入口处,它被进一步化整为零,成为大小不一的若干圆形和椭圆坡顶的小小建筑,又按使用功能被分类组合及相互联接,形成一群彼此呼应的小小聚落。这组小建筑朝向外侧的连续弧形界面,罩以白色透光的PTFE膜材,带来轻盈和临时之感,似乎随时可以迁走一样,暗含草原的游牧特质,同时表达了对遗址的尊重;而建筑朝向内侧的部分,其坡顶弧形体量在严密的几何规则控制下被连续剖切,形成连续展开的、呈曲线轮廓起伏波动的拆线形内界面,并暴露出膜和混凝土两种结构。这个具有强烈动感和自由感的人工界面,对话于苍茫的自然草原和静谧的遗址景观。“几何与胜景”的设计思想因这个小项目而被清晰和明确。

当人们进入沧桑宏阔的遗址区,站在高处回望,工作站的“小帐篷”又变成了茫茫草原上的一簇白色的圆点。由远及近,又由近至远,这组貌似却不同于通常印象的草原建筑给造访的人们带来小小的戏剧性。



绩溪博物馆位于安徽绩溪县旧城北部,基址曾为县衙,后建为县政府大院,现因古城整体纳入保护修整规划,改变原有功能,改建为博物馆。包括展示空间、4D影院、观众服务、商铺、行政管理、库藏等功能,是一座中小型地方历史文化综合博物馆。
建筑设计基于对绩溪的地形环境、名称由来的考察和对徽派建筑与聚落的调查研究。整个建筑覆盖在一个连续的屋面之下,起伏的屋面轮廓和肌理仿佛绩溪周边山形水系,是“北有乳溪,与徽溪相去一里,并流离而复合,有如绩焉”的“绩溪之形”的充分演绎和展现。待周边区域修整“改徽”完成,古城风貌得以恢复后,建筑将与整个城市形态更加自然地融为一体。
为尽可能保留用地内的现状树木(特别是用地西北部一株700年树龄的古槐),建筑的整体布局中设置了多个庭院、天井和街巷,既营造出舒适宜人的室内外空间环境,也是徽派建筑空间布局的重释。建筑群落内沿着街巷设置有东西两条水圳,汇聚于主入口大庭院内的水面。规律性组合布置的三角屋架单元,其坡度源自当地建筑,并适应连续起伏的屋面形态;在适当采用当地传统建筑技术的同时,以灵活的方式使用砖、瓦等当地常见的建筑材料,并尝试使之呈现出当代感。
在绩溪博物馆这个完全当代的城市博物馆中,人们仍然可以体验与以前的生活记忆和传统的紧密关联,那些久已存在的山水树木则是古今未来相通的见证和最好媒介。古已有之的营造材料和做法都仍可被选择沿用或用现代的方式重新演绎和转化,使得绩溪博物馆成为一个可以适应国际语境和当代生活的现代建筑,同时又将传统和文化悄然留存传播。这个建筑本身可以成为绩溪博物馆最直观的一件展品;同时,绩溪博物馆作为公共空间与绩溪人的日常生活紧密相关,成为绩溪的城市客厅。


备注:本文节选于《静谧与喧嚣》,中国建筑工业出版社,内容稍有改动。
版权声明:本文节选于书籍《静谧与喧嚣》,内容稍有改动。欢迎转发,禁止转载。
投稿邮箱:有方网站启动招聘版块,现免费为建筑事务所提供招聘推广 media@archiposition.com
上一篇:建筑摄影 | 青岛里院记忆:黄岛路17号平康五里
下一篇:旅行现场 | 越小的房子越惊喜