全部
文章
视频
旅行报名
招聘信息
有方服务
按发布时间
按浏览量
按收藏量
条搜索结果
暂无数据

很抱歉,没有找到 “” 相关结果

请修改或者尝试其他搜索词

登录
注册
忘记密码
其他登录方式
返回
忘记密码
确认修改
返回
请登录需要关联的有方账号
关联新账号
关联已有账号

车站建筑 | 新布雷达中心车站

车站建筑 | 新布雷达中心车站
陈牧(实习生) | 2016.09.22 16:00
1473160851 beeld201
巨大却通透的新布雷达中心车站 © Koen van Velsen Architects

自从1855年5月1号,荷兰南部的布雷达中心车站开始运作以来,虽经历了一个半世纪的变迁和多次改建,却始终扮演着这个城市最重要的交通枢纽的角色。2012年5月30日,最新的布雷达中心车站的建设正式动工,负责这个项目的是荷兰建筑师Koen Jozef van Velsen。这个对布雷达的城市构造将起到举足轻重作用的旧址上的新建,终于在2016年完工。

 

1473160997 beeld2021
新布雷达中心车站与城市环境高度和谐 © Koen van Velsen Architects

1983年毕业于阿姆斯特丹建筑学院的Koen Jozef van Velsen早期作品多数是古建筑的改建和修葺,也许正因如此,他的设计非常善于将当代的设计元素加入到历史建筑框架中,改良空间结构,创造轻盈透明的空间体验,除此之外他的设计手法一直以弱化个人审美,高度重视建筑与场地环境的和谐而著称。Van Velsen在2004年受到委托,亲手设计这个项目中的所有元素,并且发挥他最擅长的设计手法:使新的布雷达中心车站尽可能的融入到城市环境当中。除此之外,这个火车站也将是一个雄心勃勃的城市规划的核心项目,通过它的建设将使这个城市曾经的工业区转变成充满生机的城市中心,而这个建筑本身也将承担起这个城市形象的再现和代表作用。

 

1473160858 beeld202a
通透的空间和丰富的视角 © Koen van Velsen Architects
1473160981 beeld2018
立面砖墙讲述着历史的变迁 © Koen van Velsen Architects

Van Velsen的设计灵感来自意大利古城里随处可见的古老砖墙,以及这些破旧的砖墙身上由于千年的变迁积攒下的时间的印记。在布雷达,新的中心车站的里面砖墙上,通过对不同砖块微妙差距的利用,这个承载着这个古老车站百年以来的运营历史,和12年的设计建设过程中Van Velsen的设计经历的改变都得到了记录,表述甚至庆祝。在Van Velsen看来,公共交通枢纽的设计不应该是一个可以置入任何一个场地的外来物,而是一个针对场地定制的最适合当地实际情况的最佳解决方案。

 

1473160992 beeld2020
所有设计元素都为场地量身定做 © Koen van Velsen Architects
1473160960 beeld2014
相对静谧的办公区域 © Koen van Velsen Architects
1473160910 beeld208a
通过开口让不同分区进行沟通 © Koen van Velsen Architects
1473160955 beeld2013
即使在深处也能感受到建筑的轻盈和通透 © Koen van Velsen Architects

在建筑的南北两侧,各有一个和建筑体高度融和的公共广场。这两个新的公共区域成为了将场地环境和新建整体沟通连接的关键。而建筑体内丰富的视角,多处的空隙和开口则定义了它的空间构成特征。这些元素使自然光可以渗透到建筑体内部深处,通透的光感将这个巨大的建筑体内部空间体验变得连贯顺畅。另外,丰富的视角和内外空间的连接和沟通让室内导航轻而易举,建筑体与周围的环境融为一体。

 

1473160986 beeld2019
小广场成为了建筑与城市环境的连接 © Koen van Velsen Architects

在建筑内部,巨大通透的空间非常舒适宽敞,而且区域和功能定义非常清晰。虽然包含着住宅,办公,商业以及停车,室内外自行车存放以及室外广场等多重功能,Van Velsen并没有将它构想为一个由许多交通节点连接的各个功能空间的复合体,而是一个由不同功能通过清晰的排列,共同形成的一个明晰的,与当地城市环境高度融合的整体。设计以乘客为中心,致力于使空间布置便捷,清晰,惬意的氛围。以此提供最适当的空间体量,舒适的空间体验,和最理想的使用体验。

 

1473160935 beeld2010
不同功能分区互相沟通却互不打扰 © Koen van Velsen Architects
1473160904 beeld207
流畅的内部空间 © Koen van Velsen Architects
1473160895 beeld205
以游客为中心,惬意的氛围 © Koen van Velsen Architects
1473160863 beeld202b
不同区域之间的连接使空间体验流畅而丰富 © Koen van Velsen Architects

新布雷达中心车站是由荷兰房屋,空间与环境管理局发起的由六个新建交通枢纽组成的规划项目当中的一个。这个项目的其他项目包括Benthem Crouwel事务所的鹿特丹中心车站和海牙中心车站,以及UNStudio设计的新阿纳姆车站。

 

1449151810 situatie20website
与场地融为一体的定制解决方案 © Koen van Velsen Architects
gr keller
地下一层平面图 © Koen van Velsen Architects
gr eg
一层平面图 © Koen van Velsen Architects
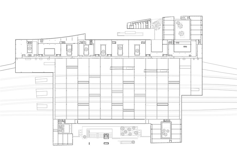
gr 1og
二层平面图 © Koen van Velsen Architects
gr 2og
三层平面图 © Koen van Velsen Architects
gr 3og
四层平面图 © Koen van Velsen Architects
gr 4og
五层平面图 © Koen van Velsen Architects
gr 5og park
六层平面图 © Koen van Velsen Architects
Sec 1
纵切面—1 © Koen van Velsen Architects
Sec 2
纵切面—2 © Koen van Velsen Architects
Sec 3
横切面 © Koen van Velsen Architects

建筑师:Koen van Velsen

项目:布雷达中心车站

地点:布雷达, 荷兰

中文:陈牧(实习)

校对:卡斯密


版权声明:本文版权归有方所有,转载请通过邮件或电话与有方新媒体中心取得授权。

投稿邮箱:media@archiposition.com

关键词:
Breda centraal
Koen van Velson
项目
0
参与评论
热门标签
中国空间研究计划
建筑师在做什么
建筑师访谈
建筑讲座
有方招聘
行走中的建筑学
项目
视频
订阅有方最新资讯
投稿

*注意:

1. 邮件标题及资料包请以“新作/视频投稿-项目名称-设计单位”格式命名;

2. 由于媒体中心每日接收投稿数量较多,发送资料前请确认项目基本信息、文图资料准确无误。接受投稿后,不做原始资料的改动;

3. 若投稿方已于自有平台进行发布且设置“原创”,请提前开设好白名单(有方空间账号:youfang502;Space内外账号:designall),并设置好“可转载、不显示转载来源”两项。

请将填写后的表格与以上资料,以压缩包形式发送至邮箱media@archiposition.com,尽量避免使用网易邮箱的附件功能。